Npma33 Template

Npma33 Template

The NPMA-33 form is a Wood Destroying Insect Inspection Report that provides essential information about the condition of a property regarding potential insect infestations. This report is not a guarantee of the absence of wood destroying insects and is based on a visual inspection of accessible areas. It is crucial for property buyers and owners to understand the findings and recommendations outlined in this document.

To ensure you are informed about the condition of your property, fill out the NPMA-33 form by clicking the button below.

Table of Contents

The NPMA-33 form serves as a critical tool in the realm of real estate transactions, particularly concerning the inspection of wood-destroying insects. This form provides a detailed report following a visual inspection of a property, documenting the findings related to any signs of infestation. The report includes essential information such as the inspection company’s details, the date of inspection, and the address of the property inspected. It categorizes findings into clear sections, indicating whether visible evidence of wood-destroying insects was observed, such as live or dead insects and any resulting damage. Importantly, it clarifies that the report does not guarantee the absence of future infestations or structural integrity, urging buyers to seek further evaluation if necessary. The NPMA-33 also outlines any obstructions that may have limited the inspection, ensuring transparency about the areas that were inaccessible. Additionally, it provides recommendations for treatment if any evidence of infestation is found. This form is not only a record of the inspection but also a guideline for homeowners to understand the conditions that may lead to future infestations, emphasizing the importance of ongoing maintenance and prevention strategies.

Npma33 Sample

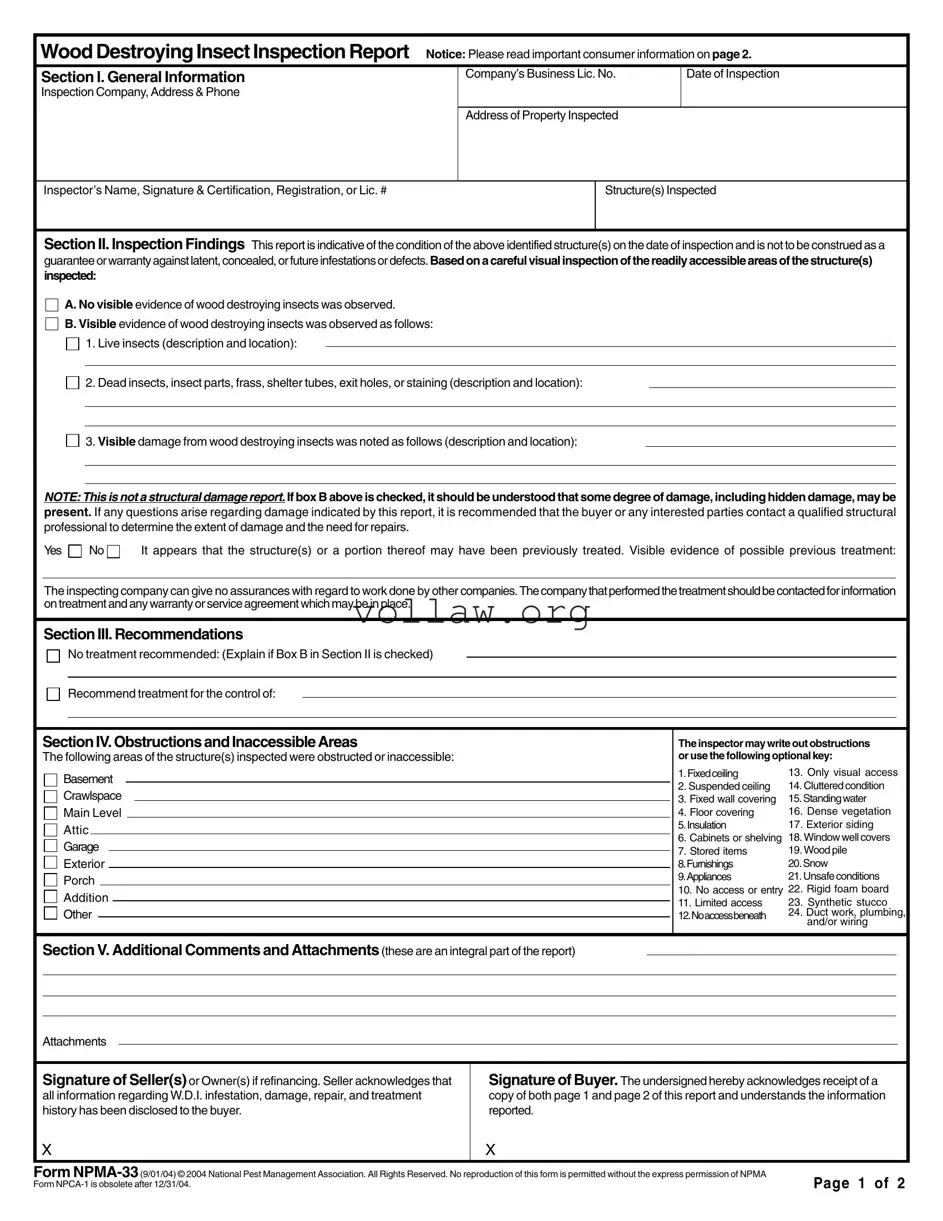
Wood Destroying Insect Inspection Report

Notice: Please read important consumer information on page 2.

Section I. General Information

 

Company’s Business Lic. No.

Date of Inspection

Inspection Company, Address & Phone

 

 

 

 

 

 

 

 

 

 

 

Address of Property Inspected

 

 

 

 

 

 

Inspector’s Name, Signature & Certification, Registration, or Lic. #

 

 

Structure(s) Inspected

 

 

 

 

 

Section II. Inspection Findings This report is indicative of the condition of the above identified structure(s) on the date of inspection and is not to be construed as a guarantee or warranty against latent, concealed, or future infestations or defects. Based on a careful visual inspection of the readily accessible areas of the structure(s) inspected:

A. No visible evidence of wood destroying insects was observed.

B. Visible evidence of wood destroying insects was observed as follows:

1. Live insects (description and location):

2. Dead insects, insect parts, frass, shelter tubes, exit holes, or staining (description and location):

3. Visible damage from wood destroying insects was noted as follows (description and location):

NOTE: This is not a structural damage report. If box B above is checked, it should be understood that some degree of damage, including hidden damage, may be present. If any questions arise regarding damage indicated by this report, it is recommended that the buyer or any interested parties contact a qualified structural professional to determine the extent of damage and the need for repairs.

Yes

 

No

 

It appears that the structure(s) or a portion thereof may have been previously treated. Visible evidence of possible previous treatment:

The inspecting company can give no assurances with regard to work done by other companies. The company that performed the treatment should be contacted for information on treatment and any warranty or service agreement which may be in place.

Section III. Recommendations

No treatment recommended: (Explain if Box B in Section II is checked)

Recommend treatment for the control of:

 

Section IV. Obstructions and Inaccessible Areas

 

 

 

The inspector may write out obstructions

 

The following areas of the structure(s) inspected were obstructed or inaccessible:

 

 

 

or use the following optional key:

 

 

 

Basement

 

 

 

 

 

1.Fixedceiling

13. Only visual access

 

 

 

 

 

 

 

 

 

 

 

 

 

2. Suspended ceiling

14. Cluttered condition

 

 

 

 

 

 

 

 

 

 

 

Crawlspace

 

 

 

 

 

 

 

 

 

 

 

 

 

 

 

3. Fixed wall covering

15. Standing water

 

 

 

 

 

 

 

 

 

 

 

 

 

 

 

 

 

 

 

 

 

Main Level

 

 

 

 

4. Floor covering

16. Dense vegetation

 

 

 

 

 

 

Attic

 

 

 

 

 

 

 

 

 

 

 

5.Insulation

17. Exterior siding

 

 

 

 

 

 

 

 

 

 

 

 

 

 

 

 

 

 

 

 

 

 

 

 

 

 

 

 

 

 

 

 

 

6. Cabinets or shelving

18. Window well covers

 

 

 

Garage

 

 

 

 

 

 

 

 

 

 

 

 

 

 

 

 

 

 

 

 

 

 

 

 

 

 

 

 

 

 

 

 

7. Stored items

19. Wood pile

 

 

 

 

 

 

 

 

 

 

 

 

 

Exterior

 

 

 

 

 

8.Furnishings

20.Snow

 

 

 

Porch

 

 

 

 

 

 

 

 

 

9.Appliances

21. Unsafe conditions

 

 

 

 

 

 

 

 

 

 

 

 

Addition

 

 

 

 

 

 

 

10. No access or entry 22. Rigid foam board

 

 

 

 

 

 

 

 

 

 

 

 

 

 

 

 

 

 

 

 

 

11. Limited access

23. Synthetic stucco

 

 

 

 

 

 

 

 

 

 

 

 

 

 

 

 

 

 

 

 

 

 

 

 

 

 

 

 

 

 

 

 

 

 

 

 

 

Other

 

 

 

 

12.Noaccessbeneath

24. Duct work, plumbing,

 

 

 

 

 

 

 

 

 

and/or wiring

 

 

 

 

 

 

 

 

 

 

 

 

 

 

 

 

 

Section V. Additional Comments and Attachments (these are an integral part of the report)

 

 

 

 

 

 

 

 

 

 

 

 

 

 

 

 

 

 

 

 

 

 

 

 

 

 

 

 

 

 

 

 

 

 

 

 

 

 

 

 

 

 

 

 

 

 

 

 

 

 

 

 

 

 

 

 

 

Attachments

 

 

 

 

 

 

 

 

 

 

 

 

 

 

 

 

 

 

 

 

 

 

 

 

Signature of Seller(s) or Owner(s) if refinancing. Seller acknowledges that

Signature of Buyer. The undersigned hereby acknowledges receipt of a

 

all information regarding W.D.I. infestation, damage, repair, and treatment

copy of both page 1 and page 2 of this report and understands the information

 

history has been disclosed to the buyer.

reported.

 

 

 

X

X

 

 

 

Form NPMA-33(9/01/04) © 2004 National Pest Management Association. All Rights Reserved. No reproduction of this form is permitted without the express permission of NPMA

Page 1 of 2

Form NPCA-1 is obsolete after 12/31/04.

Important Consumer Information Regarding

the Scope and Limitations of the Inspection

Please read this entire page as it is part of this report. This report is not a guarantee or warranty as to the absence of wood destroying insects nor is it a structural integrity report. The inspector’s training and experience do not qualify the inspector in damage evaluation or any other building construction technology and/or repair.

1.About the Inspection: A visual inspection was conducted in the readily accessible areas of the structure(s) indicated (see Page 1) including attics and crawlspaces which permitted entry during the inspection. The inspection included probing and/or sounding of unobstructed and accessible areas to determine the presence or absence of visual evidence of wood destroying insects. The WDI inspection firm is not responsible to repair any damage or treat any infestation at the structure(s) inspected, except as may be provided by separate contract. Also, wood destroying insect infestation and/or damage may exist in concealed or inaccessible areas. The inspection firm cannot guarantee that any wood destroying insect infestation and/or damage disclosed by this inspection represents all of the wood destroying insect infestation and/or damage which may exist as of the date of the inspection.Forpurposesofthisinspection,wooddestroyinginsectsinclude:termites,carpenterants,carpenterbees,and reinfestingwoodboringbeetles.Thisinspectiondoesnotincludemold,mildewornoninsectwooddestroyingorganisms. This report shall be considered invalid for purposes of securing a mortgage and/or settlement of property transfer if not used within ninety (90) days from the date of inspection. This shall not be construed as a 90-day warranty. There is no warranty, express or implied, related to this report unless disclosed as required by state regulations or a written warranty or service agreement is attached.

2.Treatment Recommendation Guidelines Regarding Subterranean Termites: FHA and VA require treatment when any active infestation of subterranean termites is found. If signs of subterranean termites — but no activity — are found in a structure that shows no evidence of having been treated for subterranean termites in the past, then a treatment should be recommended. A treatment may also be recommended for a previously treated structure showing evidence of subterranean termites — but no activity — if there is no documentation of a liquid treatment by a licensed pest control company within the previous five years unless the structure is presently under warranty or covered by a service agreement with a licensed pest control company.

3.Obstructions and Inaccessible Areas: No inspection was made in areas which required the breaking apart or into, dismantling,

removal of any object, including but not limited to: moldings, floor coverings, wall coverings, siding, fixed ceilings, insulation, furniture, appliances, and/or personal possessions; nor were areas inspected which were obstructed or inaccessible for physical access on the date of inspection. Your inspector may write out inaccessible areas or use the key in Section IV. Crawl spaces, attics, and/or other areas may be deemed inaccessible if the opening to the area is not large enough to provide physical access for the inspector or if a ladder was required for access. Crawl spaces (or portions thereof) may also be deemed inaccessible if there is less than 24 inches of clearance from the bottom of the floor joists to the surface below. If any area which has been reported as inaccessible is made accessible, the inspection company may be contacted for another inspection. An additional fee may apply.

4.Consumer Maintenance Advisory Regarding Integrated Pest Management for Prevention of Wood Destroying Insects. Any structure can be attacked by wood destroying insects. Homeowners should be aware of and try to eliminate conditions which promote insect infestation in and around their structure(s). Factors which may lead to wood destroying insect infestation include: earth to wood contact, foam insulation at foundation in contact with soil, faulty grade, improper drainage, firewood against structure(s), insufficient ventilation, moisture, wood debris in crawlspace, wood mulch or ground cover in contact with the structure, tree branches touching structure(s), landscape timbers and wood decay. Should these or other conditions exist, corrective measures should be taken in order to reduce the chances of infestation of wood destroying insects and the need for treatment.

5.Neither the inspecting company nor the inspector has had, presently has, or contemplates having any interest in the property inspected.

Form NPMA-33(9/01/04) © 2004 National Pest Management Association. All Rights Reserved. No reproduction of this form is permitted without the express permission of NPMA

Page 2 of 2

Form NPCA-1 is obsolete after 12/31/04.

 

Document Attributes

Fact Name Details
Purpose The NPMA-33 form is a Wood Destroying Insect Inspection Report used to document findings from inspections of structures for wood-destroying insects.
Inspection Scope The inspection is visual and covers readily accessible areas, including attics and crawlspaces, but does not guarantee the absence of infestations.
Limitations The report is not a warranty against future infestations or structural integrity and does not cover hidden damage.
Previous Treatments If evidence of previous treatments exists, the inspecting company cannot guarantee the effectiveness of that work.
Recommendations The form allows for treatment recommendations based on findings, particularly if wood-destroying insects are observed.
Obstructions Areas that are obstructed or inaccessible during the inspection will be noted, and additional inspections may incur fees.
Consumer Advisory The form includes advice on conditions that may promote infestations, encouraging homeowners to take preventive measures.
Governing Law Specific state regulations may apply, and it is essential to check local laws regarding pest inspections and disclosures.

Npma33: Usage Instruction

To complete the NPMA-33 form, follow these steps carefully. Ensure that all required information is accurately filled out to avoid any issues during the inspection process.

  1. Enter the company’s business license number in the designated field.
  2. Fill in the date of the inspection.
  3. Provide the name, address, and phone number of the inspection company.
  4. Write the address of the property being inspected.
  5. Input the inspector’s name, signature, and certification or registration number.
  6. Indicate the structure(s) that were inspected.
  7. Review the inspection findings section. Check the appropriate box indicating whether visible evidence of wood destroying insects was observed.
  8. If applicable, provide details regarding live insects, dead insects, or any visible damage in the specified areas.
  9. If there was evidence of previous treatment, indicate this and provide any visible evidence noted.
  10. In the recommendations section, state whether treatment is recommended or not. If treatment is recommended, specify the type.
  11. List any obstructions or inaccessible areas that were noted during the inspection.
  12. Include any additional comments or attachments that are relevant to the report.
  13. Ensure that the seller(s) or owner(s) sign the form if refinancing.
  14. Have the buyer sign the form to acknowledge receipt of the report.

After completing the NPMA-33 form, it is important to review all entries for accuracy. This ensures that all parties involved have a clear understanding of the inspection findings and recommendations. Proper documentation will facilitate any necessary follow-up actions regarding pest management or property repairs.

Frequently Asked Questions

  1. What is the purpose of the NPMA-33 form?

    The NPMA-33 form is a Wood Destroying Insect Inspection Report. Its primary purpose is to document the findings of an inspection for wood destroying insects, such as termites and carpenter ants, in a specified structure. The report provides a visual assessment of the property on the date of inspection and includes information about any visible evidence of infestation or damage.

  2. What does the inspection process involve?

    The inspection process involves a visual examination of readily accessible areas of the structure, including attics and crawlspaces. The inspector may probe or sound unobstructed areas to check for signs of wood destroying insects. However, the inspection does not include areas that are obstructed or inaccessible. If any areas are later made accessible, the inspection company can be contacted for a follow-up inspection, potentially for an additional fee.

  3. What are the limitations of the NPMA-33 report?

    The NPMA-33 report is not a guarantee or warranty against future infestations or structural damage. It is important to note that the inspection only reflects the condition of the property on the date of the inspection. Wood destroying insect infestations or damage may exist in concealed or inaccessible areas that were not inspected. The report also does not evaluate the structural integrity of the property.

  4. What should I do if evidence of wood destroying insects is found?

    If the inspection report indicates visible evidence of wood destroying insects, it is recommended to consult a qualified structural professional. This professional can assess the extent of any damage and determine the necessary repairs or treatments. The NPMA-33 form will provide specific recommendations based on the findings of the inspection.

  5. How long is the NPMA-33 report valid?

    The NPMA-33 report is valid for 90 days from the date of inspection. After this period, the report may no longer be used for securing a mortgage or settling property transfer. It is essential to keep this timeframe in mind when considering the findings of the inspection.

  6. What consumer maintenance advice is provided in the report?

    The report includes consumer maintenance advice regarding integrated pest management. Homeowners are encouraged to eliminate conditions that may promote wood destroying insect infestations. This includes addressing factors such as earth-to-wood contact, improper drainage, and insufficient ventilation. Taking preventive measures can help reduce the risk of infestations and the need for treatment.

Common mistakes

Filling out the NPMA-33 form can be straightforward, but there are common mistakes that people often make. One significant error is failing to provide complete contact information for the inspection company. This includes the company’s name, address, and phone number. Incomplete information can lead to confusion later on, especially if follow-up questions arise regarding the inspection.

Another frequent mistake is neglecting to sign the form. Both the seller and the buyer should acknowledge receipt of the report by signing it. Without these signatures, the document may not be considered valid. This can create issues during the transaction process, as the parties may not have a clear understanding of the inspection findings.

People also often misinterpret the inspection findings. For instance, if visible evidence of wood destroying insects is noted, it is crucial to understand that this does not guarantee that no hidden damage exists. Individuals may mistakenly believe that a clean report means there are no concerns, which is not necessarily the case. It is essential to read the report carefully and understand its limitations.

Additionally, some individuals may overlook the section regarding obstructions and inaccessible areas. It is important to note any areas that were not inspected due to obstructions. Failing to document these areas can lead to misunderstandings about the thoroughness of the inspection. If any issues arise later, it may be difficult to ascertain whether they were present during the initial inspection.

Lastly, people often forget to review the consumer information provided on the second page of the form. This section contains important details about the inspection's scope and limitations. Ignoring this information can lead to unrealistic expectations about the inspection's findings and future risks. Understanding these limitations is crucial for making informed decisions regarding property maintenance and potential treatments.

Documents used along the form

The NPMA-33 form is a crucial document in the process of inspecting properties for wood-destroying insects. However, it is often accompanied by several other forms and documents that provide additional information and context. Below is a list of these documents, each described briefly to clarify their purpose and relevance.

  • NPMA-1 Form: This form is used to document the results of a wood-destroying insect inspection. It includes details about the property, the inspector's findings, and any recommendations for treatment. This form serves as an official record of the inspection process.
  • Inspection Agreement: This document outlines the terms and conditions of the inspection service. It specifies the scope of the inspection, the responsibilities of both the inspector and the client, and any limitations regarding liability.
  • Service Agreement: This agreement details the terms of any pest control services that may follow the inspection. It includes information about the treatment plan, warranty provisions, and the costs associated with the services rendered.
  • Disclosure Statement: This document is often required by law and informs the buyer about any known issues related to wood-destroying insects. It ensures transparency in the sale process and protects both the buyer and seller.
  • Repair Estimates: If damage from wood-destroying insects is found, repair estimates may be provided. These documents outline the costs and scope of necessary repairs, helping the buyer understand the financial implications of any infestations.
  • Follow-Up Inspection Report: If a follow-up inspection is conducted after treatment, this report documents the results of that inspection. It may indicate whether the treatment was successful or if further action is needed.
  • Consumer Maintenance Guidelines: This document provides homeowners with information on how to prevent future infestations. It includes recommendations for maintaining the property and reducing the risk of wood-destroying insects.

These documents collectively enhance the understanding of the inspection process and the steps that may follow. They ensure that all parties involved are informed and prepared to address any issues related to wood-destroying insects effectively.

Similar forms

  • NPMA-1 Form: Similar to the NPMA-33, this form also documents inspections related to wood-destroying insects but focuses on structural damage assessments rather than just the presence of insects.
  • WDI Inspection Report: This report shares similarities with the NPMA-33 in that it provides findings from inspections for wood-destroying insects but may include more detailed recommendations for treatment.
  • Pest Control Service Agreement: Like the NPMA-33, this document outlines the terms of pest control services, including inspection findings and treatment options, but is more focused on the contractual obligations between the pest control company and the client.
  • Home Inspection Report: This report encompasses a broader scope than the NPMA-33, covering various aspects of a home’s condition while still addressing potential pest issues.
  • Termite Inspection Certificate: Similar in purpose to the NPMA-33, this certificate specifically confirms the presence or absence of termites and may be used for real estate transactions.
  • Real Estate Disclosure Statement: While broader in scope, this document may include pest inspection results similar to those in the NPMA-33, providing potential buyers with information about past infestations.
  • Environmental Assessment Report: This report may address pest issues, including wood-destroying insects, while focusing on environmental factors affecting the property.
  • Property Condition Disclosure: Similar to the NPMA-33, this document reveals known issues with the property, including pest infestations, to prospective buyers.
  • Home Warranty Agreement: This agreement may cover pest control services and inspections, providing a level of assurance similar to what the NPMA-33 offers regarding pest issues.
  • Inspection Addendum: This document supplements the main inspection report, providing additional details about findings related to wood-destroying insects, akin to the NPMA-33.

Dos and Don'ts

When filling out the NPMA-33 form, keep these important tips in mind:

  • Do: Read the entire form carefully, including the consumer information on page 2.
  • Do: Provide accurate information about the property and inspection details.
  • Do: Clearly indicate any visible evidence of wood destroying insects.
  • Do: Contact a qualified professional if you have questions about damage indicated in the report.
  • Don't: Assume that the inspection guarantees the absence of wood destroying insects.
  • Don't: Leave any sections of the form blank unless instructed.
  • Don't: Ignore the recommendations provided in the report.
  • Don't: Forget to sign the form if you are the seller or buyer.

Misconceptions

Understanding the NPMA-33 form is crucial for homeowners and buyers concerned about wood-destroying insects. However, several misconceptions can lead to confusion. Here are seven common misunderstandings:

  • This form guarantees the absence of wood-destroying insects. Many believe that the NPMA-33 provides a warranty against infestations. In reality, it only reflects the condition of the property at the time of inspection.
  • The inspector evaluates structural damage. Some assume that the inspector assesses structural integrity. The NPMA-33 specifically states that it is not a structural damage report.
  • All areas of the property are inspected. A common belief is that every part of the property is examined. However, the inspection is limited to readily accessible areas, and some sections may be obstructed or inaccessible.
  • Previous treatments are guaranteed to be effective. Homeowners often think that if a property was treated in the past, it is safe from future infestations. The NPMA-33 clarifies that the inspecting company cannot assure the effectiveness of prior treatments.
  • The report is valid indefinitely. Many people assume that the NPMA-33 report remains valid for an extended period. In fact, it is only considered valid for 90 days from the date of inspection.
  • Wood-destroying insects are the only concern. Some individuals think that the inspection covers all potential pest issues. The NPMA-33 focuses specifically on wood-destroying insects and does not include assessments for mold or other pests.
  • The inspector has a financial interest in the property. There is a misconception that inspectors may have a stake in the properties they inspect. The NPMA-33 explicitly states that the inspector does not have any interest in the property inspected.

Being aware of these misconceptions can help you make informed decisions regarding pest inspections and property purchases. Always consult with a qualified professional if you have further questions or concerns.

Key takeaways

Here are key takeaways regarding the NPMA-33 form:

  • The NPMA-33 form is a Wood Destroying Insect Inspection Report.
  • It is essential to read the consumer information on page 2 before filling out the form.
  • Section I requires general information, including the inspection company’s details and the property address.
  • Inspection findings in Section II indicate whether visible evidence of wood destroying insects was observed.
  • If evidence of infestation is found, detailed descriptions and locations must be provided.
  • This report does not guarantee the absence of wood destroying insects or structural integrity.
  • Obstructions or inaccessible areas must be noted, as they limit the inspection's scope.
  • Recommendations for treatment are included in Section III, based on the findings.
  • The report is valid for 90 days from the inspection date and is not a warranty.