Lic 38 Template

Lic 38 Template

The LIC 38 form is an essential application for obtaining an electrical license in New York. It requires detailed information about the applicant, the business, and any responsible representatives involved. To start your application process, fill out the form by clicking the button below.

Table of Contents

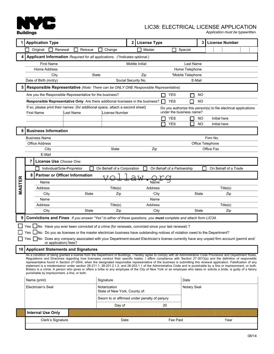
The LIC 38 form is a crucial document for individuals and businesses seeking to obtain or renew an electrical license in New York. This application must be filled out using a typewriter, ensuring clarity and professionalism. The form requires applicants to specify the type of application—whether it’s original, renewal, reissue, or change—as well as the specific license type, such as Master or Special. Personal information is essential, including the applicant's name, contact details, and social security number. Additionally, the form designates a Responsible Representative, who must be clearly identified, as only one can be appointed per application. Business details are also necessary, encompassing the business name, address, and contact information. Applicants must indicate their license use, whether as an individual, corporation, or partnership. It’s important to disclose any criminal convictions or outstanding fines, as this could affect the application process. Lastly, the form requires signatures affirming compliance with relevant regulations, along with notarization to validate the application. Each section of the LIC 38 form plays a vital role in ensuring that the licensing process is thorough and transparent.

Lic 38 Sample

LIC38: ELECTRICAL LICENSE APPLICATION

Application must be typewritten.

1

Application Type

2 License Type

3

License Number

Original

Renewal

Reissue

Change

Master

Special

4Applicant Information Required for all applications. (*Indicates optional.)

First Name

 

Middle Initial

Last Name

Home Address

 

 

Home Telephone

 

 

 

 

City

State

Zip

*Mobile Telephone

 

 

 

 

Date of Birth (m/d/y)

 

Social Security No.

E-Mail

5Responsible Representative (Note: There can be ONLY ONE Responsible Representative)

 

Are you the Responsible Representative for the business?

YES

NO

 

 

 

 

 

 

 

Responsible Representative Only: Are there additional licensees in the business?

YES

NO

 

 

 

 

 

If so, please print their names: (for additional space, attach a second sheet)

Do you authorize this person(s) to file electrical applications

 

First Name

Last Name

License Number

under the business name?

 

 

 

 

 

 

 

 

 

 

 

 

YES

NO

Initial here

 

 

 

 

 

 

 

 

 

 

 

YES

NO

Initial here

 

 

 

 

 

 

 

6

Business Information

 

Business Name

 

 

 

Firm No.

 

 

 

 

 

 

 

 

 

Office Address

 

 

Office Telephone

 

 

 

 

 

 

 

 

 

 

 

 

 

City

 

State

Zip

Office Fax

 

 

 

 

 

 

 

 

 

 

 

E-Mail

 

 

 

 

 

 

7

License Use Choose One:

 

 

 

 

 

 

 

 

 

 

 

 

 

 

Individual/Sole-Proprietor

 

On Behalf of a Corporation

On Behalf of a Partnership

On Behalf of a Trade

 

 

 

 

 

 

 

MASTER

8

Partner or Officer Information

 

 

 

 

 

 

 

 

 

 

 

 

 

 

City

State

Zip

City

State

Zip

 

 

Name

 

 

Name

 

 

 

 

Address

 

Title(s)

Address

 

Title(s)

 

 

 

 

 

 

 

 

 

 

Name

 

 

Name

 

 

 

 

 

 

 

 

 

 

 

 

Address

 

Title(s)

Address

 

Title(s)

 

 

 

 

 

 

 

 

 

 

 

 

City

State

Zip

City

State

Zip

9

Convictions and Fines If you answer “Yes” to either of these questions, you must complete and attach form LIC34.

 

 

 

 

 

 

 

 

Yes

No

Have you ever been convicted of a crime (for renewals, convicted since your last renewal) ?

 

 

 

Yes

No

Do you as licensee or the master electrician business have outstanding notices of violation owed to the Department?

 

Yes

No

Does any company associated with your Department-issued Electrician’s license currently have any unpaid firm account (permit and/

 

 

 

or application) fees?

 

 

 

 

 

10 Applicant Statements and Signatures

As a condition of being granted a license from the Department of Buildings, I hereby agree to comply with all Administrative Code Provisions and Department Rules, Regulations and Directives regarding how licensees conduct their specific trades. I affirm compliance with Section 27-3013(a) and the definition of responsible representative found in Section 27-3004, when the designated responsible representative of the business is submitting this renewal application. Falsification of any statement is a misdemeanor under section 28-211.1, 28-201.2.1.2, and 28-203.1.1 of the Administrative Code and is punishable by a fine or imprisonment, or both. Bribery is a crime: A person who gives or offers a bribe to any employee of the City of New York or an employee who takes or solicits a bride, is guilty of a felony punishable by imprisonment, a fine, or both.

 

Name (print)

Signature

 

Date

 

 

 

 

 

 

 

 

 

Electrician’s Seal

Notarization

 

Notary Seal

 

 

 

 

State of New York, County of:

 

 

 

 

 

 

 

 

 

 

 

 

Sworn to or affirmed under penalty of perjury

 

 

 

 

 

 

 

 

 

 

 

 

Day of

20

 

 

 

 

 

 

 

 

 

 

Internal Use Only

 

Notary Signature

 

 

 

 

 

 

 

 

 

 

 

Clerk’s Signature

Date

Fee Paid

Year

 

 

 

 

 

 

 

 

 

 

 

 

 

 

08/14

Document Attributes

Fact Name Description
Form Purpose The LIC 38 form is used to apply for an electrical license in New York.
Application Method All applications must be completed using a typewriter or typed format.
License Types Applicants can apply for Original, Renewal, Reissue, or Change of license types.
Responsible Representative Only one Responsible Representative can be designated per business application.
Conviction Disclosure Applicants must disclose any criminal convictions or outstanding violations.
Signature Requirement Applicants must sign the form, affirming compliance with relevant laws and regulations.
Notarization The form requires notarization, confirming the applicant's identity and statements.
Governing Laws The application is governed by the New York City Administrative Code Sections 27-3013(a), 28-211.1, 28-201.2.1.2, and 28-203.1.1.
Fee Payment A fee must be paid at the time of application submission; this is noted for internal use.
Contact Information Applicants must provide complete contact information, including phone and email addresses.

Lic 38: Usage Instruction

Completing the LIC 38 form is an essential step in the application process for an electrical license. After filling out this form, it will be submitted to the appropriate department for review. Ensure that all information is accurate and complete to facilitate a smooth processing experience.

  1. Typewrite the application. Handwritten applications will not be accepted.
  2. Indicate the application type by selecting one of the following: Original, Renewal, Reissue, or Change.
  3. Choose the license type: Master or Special.
  4. If applicable, provide your license number.
  5. Fill out the applicant information section, including:
    • First Name
    • Middle Initial
    • Last Name
    • Home Address
    • Home Telephone
    • City
    • State
    • Zip Code
    • *Mobile Telephone (optional)
    • Date of Birth (m/d/y)
    • Social Security Number
    • E-Mail
  6. Designate the Responsible Representative. Answer whether you are the Responsible Representative for the business.
  7. If you are the Responsible Representative, indicate if there are additional licensees in the business.
  8. Authorize any additional licensees to file electrical applications under your business name, if applicable.
  9. Provide business information, including:
    • Business Name
    • Firm Number
    • Office Address
    • Office Telephone
    • City
    • State
    • Zip Code
    • Office Fax
    • E-Mail
  10. Select the license use category: Individual/Sole-Proprietor, On Behalf of a Corporation, On Behalf of a Partnership, or On Behalf of a Trade MASTER.
  11. Provide partner or officer information, including:
    • Name
    • Address
    • Title(s)
  12. Answer the convictions and fines section honestly. If applicable, complete and attach form LIC34.
  13. Read the applicant statements and sign the form. Include your printed name, signature, and date.
  14. Obtain an electrician’s seal and notarization. The notary must complete their section, including the state and county.
  15. Ensure that all internal use sections are completed, including notary signature and clerk’s signature, if required.
  16. Pay the required fee and keep a receipt for your records.

Frequently Asked Questions

  1. What is the LIC 38 form?

    The LIC 38 form is an application for an electrical license. It is required for individuals or businesses seeking to obtain, renew, or modify an electrical license in the state. The application must be completed typewritten and includes sections for personal, business, and license information.

  2. Who needs to fill out the LIC 38 form?

    Anyone applying for an original electrical license, renewing an existing license, reissuing a license, or making changes to their current license must complete the LIC 38 form. This includes individuals, sole proprietors, corporations, partnerships, and trade masters.

  3. What information is required on the LIC 38 form?

    The form requires various details, including:

    • Applicant’s personal information (name, address, phone numbers, date of birth, and social security number)
    • Business information (name, address, and contact details)
    • License type (original, renewal, etc.)
    • Responsible representative details
    • Information about any convictions or outstanding fines

  4. What is a Responsible Representative?

    The Responsible Representative is the individual designated to manage the business's electrical license. Only one person can be appointed as the Responsible Representative, and they must confirm their role on the LIC 38 form. This person is responsible for ensuring compliance with all relevant regulations.

  5. What should I do if I have a conviction or outstanding fines?

    If you answer "Yes" to either of the questions regarding convictions or outstanding fines, you must complete and attach form LIC34. This is mandatory for all applicants, including those renewing their licenses.

  6. Is there a fee associated with the LIC 38 form?

    Yes, there is a fee that must be paid when submitting the LIC 38 form. The specific amount can vary, so it is advisable to check the latest fee schedule from the Department of Buildings or relevant authority.

  7. What happens if I falsify information on the LIC 38 form?

    Falsifying any information on the LIC 38 form is considered a misdemeanor. This can lead to penalties including fines or imprisonment. It is crucial to provide accurate and truthful information throughout the application process.

  8. How can I submit the LIC 38 form?

    The completed LIC 38 form can typically be submitted in person or by mail to the appropriate office of the Department of Buildings. It is important to ensure that all required documents are included and that the form is signed and notarized as necessary.

  9. What should I do if I need more space to provide information?

    If additional space is needed to provide information, you can attach a separate sheet to the LIC 38 form. Ensure that all additional information is clearly labeled and organized to facilitate processing.

Common mistakes

Filling out the LIC 38 form can seem straightforward, but there are common mistakes that applicants often make. One frequent error is not using a typewriter or a computer to complete the form. The application specifically states that it must be typewritten. Handwritten submissions can lead to misunderstandings or delays in processing.

Another mistake occurs when applicants overlook the section on the Responsible Representative. This part is crucial, as only one Responsible Representative can be designated for the business. Failing to indicate who this person is or mistakenly listing multiple representatives can complicate the application process.

Many applicants also forget to provide complete information in the Applicant Information section. Missing details, such as the social security number or date of birth, can result in the application being returned. Ensuring that all required fields are filled out accurately is essential for a smooth application experience.

In addition, applicants sometimes neglect to address the Convictions and Fines section properly. If you answer "Yes" to any of the questions regarding convictions or outstanding violations, you must attach form LIC34. Ignoring this requirement can lead to automatic disqualification of the application.

Finally, some individuals fail to sign and date the application. The Applicant Statements and Signatures section is not just a formality; it is a legal affirmation of compliance with the Department's rules and regulations. Without a signature, the application cannot be processed, leading to unnecessary delays.

Documents used along the form

The LIC 38 form is an essential document for individuals seeking an electrical license. Alongside this form, several other documents are often required to ensure a complete application. Below is a list of four commonly used forms and documents that may accompany the LIC 38 form.

  • LIC34: Conviction Disclosure Form - This form must be completed if the applicant has a conviction or outstanding violations. It requires detailed information about any criminal history or notices of violation related to the applicant's electrical license.
  • Proof of Insurance - Applicants are often required to provide proof of liability insurance. This document demonstrates that the business is covered against potential claims arising from electrical work.
  • Business Registration Certificate - This certificate verifies that the business is legally registered. It includes the business name, address, and registration number, which helps establish the legitimacy of the applicant's business operations.
  • Notarized Affidavit - A notarized affidavit may be required to confirm the accuracy of the information provided in the application. This document serves as a sworn statement, adding an extra layer of verification to the application process.

These documents play a crucial role in the licensing process, ensuring that applicants meet all necessary requirements and comply with regulations. Properly completing and submitting these forms can facilitate a smoother application experience.

Similar forms

  • LIC34: Conviction and Violation Disclosure Form - This form is required if the applicant has been convicted of a crime or has outstanding notices of violation. Similar to the LIC38, it collects personal information and requires the applicant to affirm their compliance with regulations.
  • LIC39: Business License Application - Like the LIC38, this form is used to apply for a license to operate a business. It includes sections for business information, responsible representatives, and compliance affirmations.
  • LIC40: Electrical License Renewal Form - This document is similar in that it is used to renew an existing electrical license. It requires the same applicant information and compliance statements found in the LIC38.
  • LIC41: Electrical License Change Form - This form is used when an applicant needs to update their license information. It parallels the LIC38 by gathering applicant details and requiring signatures to confirm understanding of the rules and regulations.

Dos and Don'ts

When filling out the LIC 38 form, attention to detail is crucial. Here’s a straightforward guide to help you navigate the process effectively.

  • Do type your application. Handwritten forms may be rejected.
  • Do ensure that all required fields are completed. Missing information can delay your application.
  • Do double-check your Social Security number for accuracy. Errors can lead to complications.
  • Do clearly indicate your application type. This helps the processing team understand your needs.
  • Don't leave optional fields blank if you have relevant information. Providing extra details can be beneficial.
  • Don't forget to sign and date the application. An unsigned form will not be processed.
  • Don't submit the form without reviewing it. Take the time to ensure everything is correct.
  • Don't attempt to falsify any information. This can lead to serious legal consequences.

Following these guidelines will help ensure that your application process goes smoothly. Take your time and be thorough, and you’ll be on the right track.

Misconceptions

Here are nine common misconceptions about the LIC 38 form:

  • Only businesses can apply for a license. Many believe that only companies can submit the LIC 38 form. In reality, individuals can also apply as sole proprietors.
  • All information is optional. Some applicants think that they can skip sections. However, certain information is mandatory, such as applicant details and business information.
  • You can have multiple responsible representatives. A common misunderstanding is that multiple representatives can be listed. The form clearly states that there can only be one responsible representative.
  • Fines and convictions do not need to be reported. Some applicants believe they can omit this information. If you have any convictions or outstanding fines, you must disclose them and attach form LIC34.
  • Renewals are automatic. Many assume that renewing a license is a simple process. Each renewal requires a completed LIC 38 form and adherence to specific regulations.
  • Signatures are not necessary. Some think that they can submit the form without signing it. A signature is required to validate the application and affirm compliance with regulations.
  • Notarization is optional. There is a misconception that notarization can be skipped. The form requires notarization to confirm the identity of the applicant.
  • Only the applicant needs to provide information. Some believe that only the primary applicant's details are necessary. However, information about partners or officers must also be included.
  • The form can be handwritten. A frequent error is thinking that handwritten applications are acceptable. The LIC 38 form must be typewritten to ensure clarity and accuracy.

Key takeaways

When filling out the Lic 38 form for an electrical license application, keep these key takeaways in mind:

  • Typewritten Application: Ensure that the entire application is completed using a typewriter or computer. Handwritten applications may not be accepted.
  • Application Type: Select the appropriate application type, such as original, renewal, reissue, or change.
  • License Type: Indicate whether you are applying for a master or special license.
  • Responsible Representative: Only one responsible representative can be designated for the business. Confirm your role accurately.
  • Convictions Disclosure: If you have any convictions or outstanding fines, be prepared to complete and attach form LIC34.
  • Business Information: Provide complete details about your business, including the business name, address, and contact information.
  • Signature Requirement: The application must be signed and dated by the applicant. Ensure all signatures are clear.
  • Notarization: The application requires notarization. Find a notary public to complete this step.
  • Compliance Agreement: By signing the application, you agree to comply with all relevant codes and regulations.
  • Submission: Submit the completed application along with any required fees to the appropriate department.

Following these guidelines will help ensure that your application is processed smoothly and efficiently.