Kitchen Cleaning Report Template

Kitchen Cleaning Report Template

The Kitchen Cleaning Report form is a crucial document used to assess the cleanliness and safety of kitchen exhaust systems. It includes detailed information about the property, inspection findings, and compliance with municipal regulations. Proper completion of this form helps ensure that kitchens operate safely and efficiently, minimizing fire hazards and health risks.

To contribute to kitchen safety, please fill out the form by clicking the button below.

Table of Contents

The Kitchen Cleaning Report form serves as a vital tool for ensuring the safety and efficiency of kitchen exhaust systems in commercial settings. This comprehensive document captures essential details about the property being inspected, including the date of inspection, property address, and owner information. It addresses critical components of the kitchen exhaust systems, such as the type of hoods, fuel sources, cooking volumes, and styles, providing a clear overview of the operational parameters. The form also evaluates the condition of various system elements, including grease build-up on filters, hoods, ductwork, and fans. Additionally, it assesses the accessibility of the entire system, the functionality of fans, and the compliance with applicable codes. Important recommendations regarding cleaning frequency and future inspection dates are included to ensure ongoing maintenance. This report is particularly significant in Vancouver, where local regulations mandate that all hood cleaning contractors submit inspection and cleaning reports to the Fire Marshal’s Office within 30 days. Failure to comply can lead to penalties and revocation of work endorsements. By maintaining accurate records and adhering to safety standards, kitchens can operate more effectively while minimizing fire hazards.

Kitchen Cleaning Report Sample

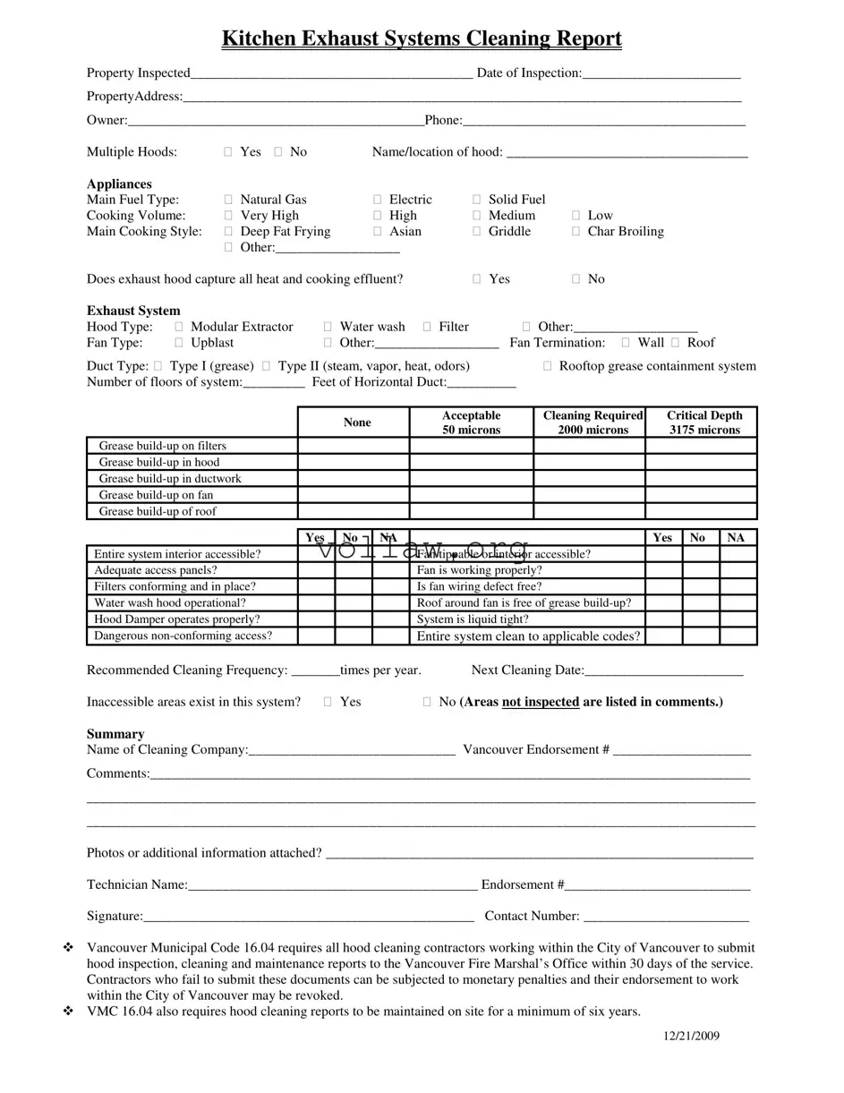
Kitchen Exhaust Systems Cleaning Report

Property Inspected_________________________________________ Date of Inspection:_______________________

PropertyAddress:_________________________________________________________________________________

Owner:___________________________________________Phone:_________________________________________

Multiple Hoods:

￿ Yes ￿ No

Name/location of hood: ___________________________________

Appliances

 

 

 

 

Main Fuel Type:

￿ Natural Gas

￿ Electric

￿ Solid Fuel

 

Cooking Volume:

￿ Very High

￿ High

￿ Medium

￿ Low

Main Cooking Style:

￿ Deep Fat Frying

￿ Asian

￿ Griddle

￿ Char Broiling

￿Other:__________________

Does exhaust hood capture all heat and cooking effluent?

￿ Yes

￿ No

Exhaust System

 

 

 

Hood Type:

￿ Modular Extractor

￿ Water wash

￿ Filter

￿ Other:__________________

Fan Type:

￿ Upblast

￿ Other:__________________ Fan Termination: ￿ Wall ￿ Roof

Duct Type: ￿ Type I (grease) ￿ Type II (steam, vapor, heat, odors)

￿ Rooftop grease containment system

Number of floors of system:_________

Feet of Horizontal Duct:__________

 

None

Acceptable 50 microns

Cleaning Required

2000 microns

Critical Depth 3175 microns

Grease build-up on filters

Grease build-up in hood

Grease build-up in ductwork

Grease build-up on fan

Grease build-up of roof

 

 

 

 

Yes

No

NA

 

 

Yes

 

 

No

 

 

NA

Entire system interior accessible?

 

 

 

 

Fan tippable or interior accessible?

 

 

 

 

Adequate access panels?

 

 

 

 

Fan is working properly?

 

 

 

 

Filters conforming and in place?

 

 

 

 

Is fan wiring defect free?

 

 

 

 

Water wash hood operational?

 

 

 

 

Roof around fan is free of grease build-up?

 

 

 

 

Hood Damper operates properly?

 

 

 

 

System is liquid tight?

 

 

 

 

Dangerous non-conforming access?

 

 

 

 

Entire system clean to applicable codes?

 

 

 

 

Recommended Cleaning Frequency: _______times per year.

Next Cleaning Date:_______________________

Inaccessible areas exist in this system?

￿ Yes

 

 

￿ No (Areas not inspected are listed in comments.)

 

Summary

Name of Cleaning Company:______________________________ Vancouver Endorsement # ____________________

Comments:_______________________________________________________________________________________

_________________________________________________________________________________________________

_________________________________________________________________________________________________

Photos or additional information attached? ______________________________________________________________

Technician Name:__________________________________________ Endorsement #___________________________

Signature:________________________________________________ Contact Number: ________________________

￿Vancouver Municipal Code 16.04 requires all hood cleaning contractors working within the City of Vancouver to submit hood inspection, cleaning and maintenance reports to the Vancouver Fire Marshal’s Office within 30 days of the service. Contractors who fail to submit these documents can be subjected to monetary penalties and their endorsement to work within the City of Vancouver may be revoked.

￿VMC 16.04 also requires hood cleaning reports to be maintained on site for a minimum of six years.

12/21/2009

Document Attributes

Fact Name Details
Property Inspection Details The report includes sections for the property inspected, date of inspection, and property address.
Owner Information It requires the owner's name and phone number for contact purposes.
Hood Specifications Information about multiple hoods, their type, and their location is documented.
Exhaust System Types The form outlines various fan types and duct types, including Type I and Type II systems.
Grease Build-Up Assessment Sections evaluate grease build-up on filters, hoods, ductwork, and fans.
Compliance with Codes The report ensures the system is clean and complies with applicable codes.
Vancouver Municipal Code VMC 16.04 mandates submission of the report to the Fire Marshal’s Office within 30 days.
Record Keeping Requirement Hood cleaning reports must be maintained on site for a minimum of six years.

Kitchen Cleaning Report: Usage Instruction

Completing the Kitchen Cleaning Report form is essential for documenting the inspection and cleaning of kitchen exhaust systems. This report must be filled out accurately to ensure compliance with local regulations and to maintain safety standards in the kitchen environment.

  1. Begin by entering the property inspected in the designated space.
  2. Fill in the date of inspection.
  3. Provide the property address clearly.
  4. Write the owner's name and phone number.
  5. Indicate if there are multiple hoods present by checking "Yes" or "No."
  6. Specify the name or location of the hood.
  7. Select the main fuel type used for appliances: Natural Gas, Electric, or Solid Fuel.
  8. Choose the cooking volume: Very High, High, Medium, or Low.
  9. Identify the main cooking style, selecting from the options provided or writing in another style if applicable.
  10. Answer whether the exhaust hood captures all heat and cooking effluent by checking "Yes" or "No."
  11. Determine the exhaust system hood type and mark the appropriate option.
  12. Identify the fan type by checking the relevant box.
  13. Indicate where the fan terminates: Wall or Roof.
  14. Specify the duct type: Type I (grease) or Type II (steam, vapor, heat, odors).
  15. Fill in the number of floors of the system.
  16. Provide the feet of horizontal duct, or indicate if there is none.
  17. Assess grease build-up on filters, in the hood, in ductwork, on the fan, and on the roof, marking "Yes," "No," or "NA" as appropriate.
  18. Answer questions regarding accessibility of the entire system, fan functionality, access panels, filter conformity, fan wiring, water wash hood operation, roof cleanliness, hood damper operation, and system integrity.
  19. State the recommended cleaning frequency in times per year.
  20. Enter the next cleaning date.
  21. Indicate if inaccessible areas exist in the system by checking "Yes" or "No."
  22. Provide the name of the cleaning company and the Vancouver endorsement number.
  23. Include any comments or additional information in the designated area.
  24. Attach any photos or additional information if necessary.
  25. Finally, fill in the technician's name, endorsement number, and contact number. Ensure the technician signs the form.

Frequently Asked Questions

  1. What is the purpose of the Kitchen Cleaning Report form?

    The Kitchen Cleaning Report form is designed to document the inspection and cleaning of kitchen exhaust systems. It helps ensure that all safety and maintenance standards are met. By keeping a record of the inspection, property owners can maintain compliance with local regulations and ensure the safety of their kitchen operations.

  2. Who is responsible for filling out the form?

    The form should be filled out by the cleaning contractor or technician who performs the inspection and cleaning. This individual is responsible for accurately documenting the condition of the exhaust system, any cleaning performed, and any recommendations for future maintenance. It is important for the technician to provide clear and complete information to ensure compliance with local regulations.

  3. What information is required on the form?

    The form requires several key pieces of information:

    • Property inspected and address
    • Date of inspection
    • Owner's name and contact information
    • Details about the exhaust system, including type and fuel source
    • Assessment of grease build-up and system accessibility
    • Cleaning frequency recommendations
    • Technician's name and signature

    Completing all sections accurately is crucial for compliance and safety.

  4. What are the consequences of not submitting the report?

    Failure to submit the Kitchen Cleaning Report can lead to serious consequences. Contractors who do not provide the report to the Vancouver Fire Marshal’s Office within 30 days may face monetary penalties. Additionally, their ability to work within the City of Vancouver could be revoked, impacting their business operations.

  5. How long must the reports be kept on site?

    According to Vancouver Municipal Code 16.04, hood cleaning reports must be maintained on site for a minimum of six years. This requirement ensures that there is a clear record of maintenance and compliance for inspection purposes. Keeping these documents readily available is essential for both safety and regulatory adherence.

Common mistakes

Filling out the Kitchen Cleaning Report form requires careful attention to detail. One common mistake is leaving the property address section incomplete. This information is crucial for identifying the location of the inspection. Without a complete address, it may lead to confusion and complications when submitting the report.

Another frequent error is neglecting to specify the main cooking style. This detail is essential for understanding the type of cooking conducted at the property. Omitting this information can hinder the assessment of the cleaning needs and may result in inadequate cleaning recommendations.

Many individuals also fail to accurately assess the exhaust system hood type. Selecting "Other" without providing specific details can create ambiguity. It is vital to clearly identify the type of hood to ensure compliance with safety standards and regulations.

Inaccuracies regarding the number of floors of the system are another common pitfall. Providing an incorrect number can lead to underestimating the cleaning requirements. Always double-check this information to avoid potential safety hazards.

Another mistake occurs when respondents do not indicate whether the entire system interior is accessible. This question is critical for determining the thoroughness of the cleaning process. Failing to answer it accurately may result in areas being overlooked, which can pose a fire risk.

Lastly, forgetting to include the next cleaning date is a significant oversight. This date is important for scheduling future maintenance and ensuring compliance with local regulations. Always ensure this section is filled out to avoid lapses in cleaning schedules.

Documents used along the form

The Kitchen Cleaning Report form is an essential document for maintaining compliance with health and safety regulations in commercial kitchens. Alongside this report, several other forms and documents are commonly utilized to ensure comprehensive kitchen management and maintenance. The following list outlines these documents and their purposes.

  • Cleaning Schedule: This document outlines the frequency and specific tasks required for kitchen cleaning. It helps staff stay organized and ensures that all areas receive regular attention.
  • Inspection Checklist: This checklist is used during routine inspections to verify that all cleaning and maintenance tasks have been completed. It serves as a record of compliance with health standards.
  • Maintenance Log: This log tracks all maintenance activities performed on kitchen equipment. It helps ensure that all appliances are functioning properly and that any issues are addressed promptly.
  • Incident Report: In case of accidents or safety violations, this report documents the details of the incident. It is crucial for identifying areas needing improvement and preventing future occurrences.
  • Service Agreement: This document outlines the terms of service between the kitchen and the cleaning company. It specifies the scope of work, pricing, and responsibilities of both parties.
  • Employee Training Records: These records document the training provided to staff regarding kitchen safety and cleaning procedures. They ensure that employees are knowledgeable about best practices.
  • Health Inspection Report: This report is generated by health inspectors during routine evaluations. It details compliance with health codes and highlights any areas that require attention.
  • Waste Disposal Log: This log tracks the disposal of waste generated in the kitchen. It is important for maintaining proper waste management practices and ensuring environmental compliance.

These documents collectively support effective kitchen operations and compliance with regulations. Maintaining accurate records can help prevent issues and ensure a safe and sanitary environment for food preparation.

Similar forms

  • Fire Safety Inspection Report: Similar to the Kitchen Cleaning Report, this document assesses the safety of a property, focusing on fire hazards. It includes information on systems like alarms and sprinklers, ensuring compliance with safety regulations.

  • HVAC Maintenance Report: This report documents the maintenance and cleaning of heating, ventilation, and air conditioning systems. Like the Kitchen Cleaning Report, it tracks the condition of components and identifies any necessary repairs or cleaning.

  • Health Inspection Report: Conducted by health departments, this report evaluates the cleanliness and safety of food establishments. It shares similarities with the Kitchen Cleaning Report in that both documents aim to ensure compliance with health and safety standards.

  • Equipment Maintenance Log: This log records the maintenance and servicing of kitchen equipment. It parallels the Kitchen Cleaning Report by providing a history of inspections and any issues found during servicing.

  • Building Inspection Report: This document assesses the overall condition of a building, including structural integrity and safety systems. Both reports aim to identify areas that require attention and ensure compliance with local codes.

Dos and Don'ts

When filling out the Kitchen Cleaning Report form, it's important to follow specific guidelines to ensure accuracy and compliance. Here are eight do's and don'ts to keep in mind:

  • Do fill in all required fields completely, including property address and owner details.
  • Do check the appropriate boxes for multiple hoods and main fuel type.
  • Do provide clear and concise comments regarding any inaccessible areas.
  • Do ensure that the technician’s name and contact number are included.
  • Don't leave any sections blank unless specified as optional.
  • Don't use vague language in the comments section; be specific about any issues.
  • Don't forget to sign and date the report before submission.
  • Don't submit the report late; aim to send it within 30 days of service.

By adhering to these guidelines, you help maintain safety standards and ensure compliance with local regulations.

Misconceptions

There are several misconceptions about the Kitchen Cleaning Report form that can lead to confusion. Understanding these can help ensure compliance and proper maintenance of kitchen exhaust systems. Here are four common misconceptions:

  • Misconception 1: The form is optional for kitchen cleaning contractors.
  • This is incorrect. The Vancouver Municipal Code 16.04 mandates that all hood cleaning contractors submit inspection and cleaning reports to the Vancouver Fire Marshal’s Office within 30 days of service. Compliance is not just recommended; it is required.

  • Misconception 2: The report only needs to be filled out if there are issues with the system.
  • In reality, the report must be completed regardless of the system's condition. It documents the cleaning process and confirms that the system meets applicable codes, providing essential information for future inspections.

  • Misconception 3: The report does not need to be kept on-site.
  • This is a misunderstanding. The code requires that hood cleaning reports be maintained on-site for a minimum of six years. This ensures that the information is readily available for inspections and audits.

  • Misconception 4: Only the cleaning company needs to be concerned with the report.
  • While the cleaning company is responsible for completing and submitting the report, property owners also have a vested interest. They must ensure that the report is filed correctly to avoid potential penalties and ensure the safety of their kitchen operations.

Key takeaways

When using the Kitchen Cleaning Report form, keep the following key points in mind:

  • Complete Information: Ensure all fields are filled out accurately, including property details, inspection date, and owner information. This helps maintain clear records.
  • Inspection Details: Document the condition of the exhaust system, including the type of hood, fan, and duct. Note any grease build-up and whether the system is accessible.
  • Compliance Requirements: Be aware that reports must be submitted to the Vancouver Fire Marshal’s Office within 30 days. Non-compliance can lead to penalties.
  • Record Keeping: Maintain a copy of the cleaning report on site for at least six years. This is essential for compliance and future inspections.