Job Briefing Template

Job Briefing Template

The Job Briefing form is an essential document used to outline safety procedures and job tasks before starting work on a project. It helps ensure that all team members are aware of potential hazards and emergency protocols, promoting a safer work environment. To make your job easier and safer, be sure to fill out the form by clicking the button below.

Table of Contents

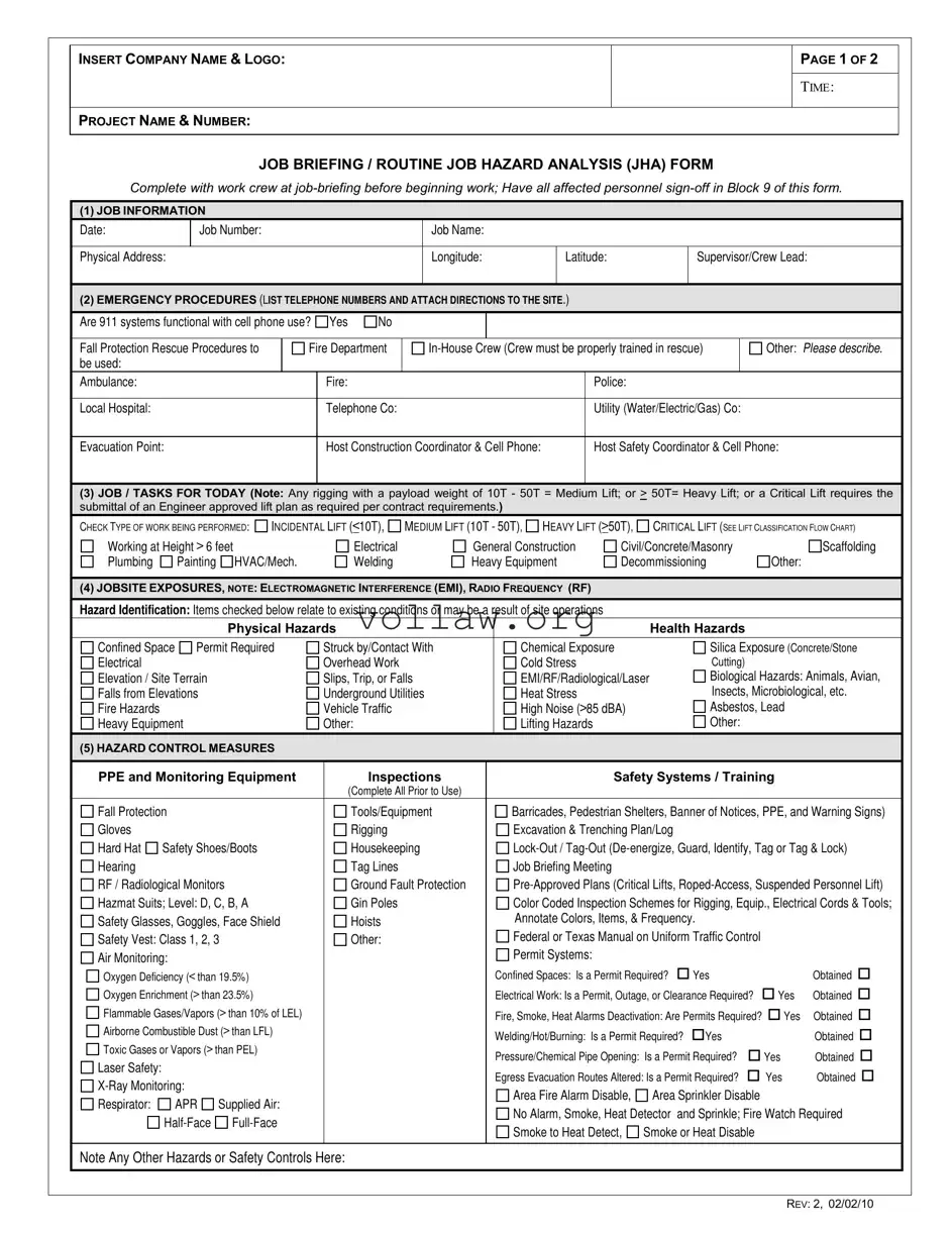
The Job Briefing form serves as a crucial tool in ensuring workplace safety and effective communication among team members before commencing any project. This form captures essential job information, including the project name, job number, and physical address, alongside the supervisor's details. It emphasizes the importance of emergency procedures, providing a space to list emergency contact numbers and evacuation points, ensuring that all personnel are prepared for unexpected situations. Furthermore, the form outlines the specific tasks to be performed that day, categorizing them by type of work, such as lifting operations or general construction activities. It also highlights potential job site exposures, from physical and health hazards to environmental concerns, allowing teams to identify risks proactively. Hazard control measures are meticulously documented, detailing personal protective equipment (PPE) and safety systems required for the job. Additionally, the form includes sections dedicated to civil work and fall protection, underscoring the need for proper planning and safety protocols when working at heights or in confined spaces. Finally, the form concludes with a section for personnel acknowledgment, ensuring that all affected team members are aware of the discussed hazards and safety measures, thereby fostering a culture of safety and accountability.

Job Briefing Sample

INSERT COMPANY NAME & LOGO:

PROJECT NAME & NUMBER:

PAGE 1 OF 2

TIME:

JOB BRIEFING / ROUTINE JOB HAZARD ANALYSIS (JHA) FORM

Complete with work crew at job-briefing before beginning work; Have all affected personnel sign-off in Block 9 of this form.

(1) JOB INFORMATION

Date:

Job Number:

Job Name:

 

 

 

Physical Address:

 

Longitude:

 

 

 

Latitude:

Supervisor/Crew Lead:

(2)EMERGENCY PROCEDURES (LIST TELEPHONE NUMBERS AND ATTACH DIRECTIONS TO THE SITE.)

Are 911 systems functional with cell phone use?

Yes

No

 

 

 

 

 

 

 

 

 

 

 

Fall Protection Rescue Procedures to

Fire Department

In-House Crew (Crew must be properly trained in rescue)

 

Other: PLEASE DESCRIBE.

be used:

 

 

 

 

 

 

 

Ambulance:

 

Fire:

 

 

Police:

 

 

 

 

 

 

 

Local Hospital:

 

Telephone Co:

 

Utility (Water/Electric/Gas) Co:

 

Evacuation Point:

Host Construction Coordinator & Cell Phone:

Host Safety Coordinator & Cell Phone:

(3)JOB / TASKS FOR TODAY (Note: Any rigging with a payload weight of 10T - 50T = Medium Lift; or > 50T= Heavy Lift; or a Critical Lift requires the submittal of an Engineer approved lift plan as required per contract requirements.)

CHECK TYPE OF WORK BEING PERFORMED:

INCIDENTAL LIFT (<10T),

MEDIUM LIFT (10T - 50T),

HEAVY LIFT (>50T),

CRITICAL LIFT (SEE LIFT CLASSIFICATION FLOW CHART)

Working at Height > 6 feet

Plumbing Painting HVAC/Mech.

Electrical Welding

General Construction Heavy Equipment

Civil/Concrete/Masonry Decommissioning

Scaffolding

Other:

(4) JOBSITE EXPOSURES, NOTE: ELECTROMAGNETIC INTERFERENCE (EMI), RADIO FREQUENCY (RF)

HAZARD IDENTIFICATION: Items checked below relate to existing conditions or may be a result of site operations

 

 

Physical Hazards

 

Health Hazards

 

 

 

 

 

 

 

 

Confined Space

Permit Required

Struck by/Contact With

Chemical Exposure

Silica Exposure (Concrete/Stone

 

Electrical

 

Overhead Work

Cold Stress

Cutting)

 

Elevation / Site Terrain

Slips, Trip, or Falls

EMI/RF/Radiological/Laser

Biological Hazards: Animals, Avian,

 

Falls from Elevations

Underground Utilities

Heat Stress

Insects, Microbiological, etc.

 

Fire Hazards

 

Vehicle Traffic

High Noise (>85 dBA)

Asbestos, Lead

 

Heavy Equipment

 

Other:

Lifting Hazards

Other:

 

 

 

 

 

 

 

(5) HAZARD CONTROL MEASURES

 

 

 

 

 

 

 

 

 

 

 

PPE and Monitoring Equipment

Inspections

Safety Systems / Training

 

 

 

 

 

(Complete All Prior to Use)

 

 

 

 

 

Fall Protection

 

Tools/Equipment

Barricades, Pedestrian Shelters, Banner of Notices, PPE, and Warning Signs)

Gloves

 

 

Rigging

Excavation & Trenching Plan/Log

 

 

 

Hard Hat

Safety Shoes/Boots

Housekeeping

Lock-Out / Tag-Out (De-energize, Guard, Identify, Tag or Tag & Lock)

 

Hearing

 

 

Tag Lines

Job Briefing Meeting

 

 

 

 

RF / Radiological Monitors

Ground Fault Protection

Pre-Approved Plans (Critical Lifts, Roped-Access, Suspended Personnel Lift)

Hazmat Suits; Level: D, C, B, A

Gin Poles

Color Coded Inspection Schemes for Rigging, Equip., Electrical Cords & Tools;

Safety Glasses, Goggles, Face Shield

Hoists

Annotate Colors, Items, & Frequency.

 

 

 

 

 

 

 

 

Safety Vest: Class 1, 2, 3

Other:

Federal or Texas Manual on Uniform Traffic Control

 

 

 

 

 

 

 

Air Monitoring:

 

 

Permit Systems:

 

 

 

 

 

 

 

 

 

 

 

Oxygen Deficiency (< than 19.5%)

 

Confined Spaces: Is a Permit Required? Yes

 

Obtained

Oxygen Enrichment (> than 23.5%)

 

Electrical Work: Is a Permit, Outage, or Clearance Required? Yes

Obtained

Flammable Gases/Vapors (> than 10% of LEL)

 

Fire, Smoke, Heat Alarms Deactivation: Are Permits Required? Yes

Obtained

Airborne Combustible Dust (> than LFL)

 

Welding/Hot/Burning: Is a Permit Required? Yes

 

Obtained

 

 

 

 

 

Toxic Gases or Vapors (> than PEL)

 

Pressure/Chemical Pipe Opening: Is a Permit Required?

Yes

Obtained

Laser Safety:

 

 

 

 

 

 

Egress Evacuation Routes Altered: Is a Permit Required?

Yes

Obtained

X-Ray Monitoring:

 

 

 

 

Area Fire Alarm Disable,

Area Sprinkler Disable

 

 

Respirator:

APR

Supplied Air:

 

 

 

 

No Alarm, Smoke, Heat Detector and Sprinkle; Fire Watch Required

 

 

Half-Face

Full-Face

 

 

 

 

Smoke to Heat Detect,

Smoke or Heat Disable

 

 

 

 

 

 

 

 

 

 

 

 

 

 

 

 

 

Note Any Other Hazards or Safety Controls Here:

REV: 2, 02/02/10

INSERT COMPANY NAME & LOGO:

PROJECT NAME & NUMBER:

PAGE 2 OF 2

TIME:

JOB BRIEFING / ROUTINE JOB HAZARD ANALYSIS (JHA) FORM

(6)COMPLETE FOR CIVIL WORK (PLEASE NOTE: ENGINEER APPROVED TRENCHING PLAN REQUIRED FOR TRENCHES > 5’)

NOT APPLICABLE

NOTE: Notify and confirm proper procedures, mitigation and/or protective steps taken with your company’s designated Safety Representative & Site Manager before

entering: any trench or any general excavation that is greater than 5’ deep; or any Confined Space.

1. Describe type and depth of excavations

Type A Soil/Rock

Type B Soil/Rock

Type C Soil/Rock:

Dig-Tess / One Call

2. Cave-in / Engulfment control measures to be used if excavation will be greater than 5 feet and personnel are entering the trench.

Shoring

Trench

Shield/Box

Ladder in Trench > 5 Feet & Every 25’ Sump Pump LOTO:

3.Describe elevation/site terrain/environmental concerns or hazards:

4.Describe hazards with site/vehicle access (High Traffic, Heavy Haul, Boom Cranes, and Storage of Materials/HazMat:

5.Describe the type of electrical or gas concerns or hazards (e.g. Electrical/Gas/Fiber Optic Lines):

Sloping

Benching

(7) FALL PROTECTION & USING SUSPENDED PERSONNEL PLATFORM (Complete for Working at Heights and Roped-Access)

NOT APPLICABLE

Type of Elevated Work & Height:

 

 

Type of Tower or Building:

 

 

 

Describe the fall protection system to be used when working aloft.

Lifeline

Personal Fall Arrest

Safety Monitor

Qualified Climber

Safety Net

Ladder Safety Device

Roped Access (Requires Roped Access JHA):

 

 

 

 

 

Fall protection to be used.

Full Body Harness

One Lanyard

Two Lanyards (100%)

Rope Grab

Cable Grab

Retractable Lifeline

Ascenders/Descenders

Anchorage Points, Belay, & Straps:

 

 

 

 

 

 

Ropes

Has each employee inspected his or her fall protection equipment?

 

Yes

No

 

 

 

Hoisting Equipment to be used: < 20’ Encroachment of Power Lines,

Yes

No; If yes, ID Voltage _______KV; De-energize/Test/Ground Lines

Yes

Suspended Personnel Platform/basket

Forklift Platform

Crane/Boom/Aerial Truck

Scissor/Snorkel Lift

Gin Pole

Roped Access

Suspended Personnel Platform Checklist and/or Critical Lift Plan Completed?

Yes

No

 

 

 

 

 

 

 

 

 

 

 

No

 

(8) REVIEWS AND SIGNATURES

 

 

 

 

 

 

 

 

 

 

 

 

 

 

 

 

 

 

 

GC Superintendent /Foreman

 

 

Lower-tier Subcontractor Supervisor

 

 

 

 

 

 

 

 

 

 

Name

Signature/Date

 

Name

Signature/Date

 

 

 

 

 

 

 

 

 

 

 

 

 

 

 

 

 

 

 

 

 

 

(9)PROJECT PERSONNEL ACKNOWLEDGEMENT (ALL AFFECTED PERSONNEL SIGN AFTER JOB BRIEFING)

Name:

Company:

CPR / First Aid

Name:

Company:

 

Yes

 

Yes

 

Yes

Yes

Yes

Yes

Yes

Yes

Yes

Yes

Yes

Yes

REV: 2, 02/02/10

Document Attributes

Fact Name Details
Purpose The Job Briefing form is used to ensure all personnel are informed about potential hazards before starting work.
Completion Requirement All affected personnel must sign off in Block 9 of the form after the job briefing.
Emergency Procedures Emergency contact numbers and directions to the job site must be listed on the form.
Job Information The form requires detailed job information, including date, job number, and supervisor's name.
Hazard Identification Physical and health hazards must be identified, including potential risks like slips, trips, and falls.
Control Measures Specific hazard control measures, such as PPE and safety systems, must be documented on the form.
Fall Protection For work at heights, the form includes a section on fall protection measures and equipment inspection.
Civil Work Compliance For civil work, an engineer-approved trenching plan is required for excavations greater than 5 feet.
State-Specific Regulations Texas regulations govern the use of this form, including adherence to OSHA standards for job safety.

Job Briefing: Usage Instruction

Completing the Job Briefing form is essential for ensuring safety and compliance before commencing work. This form must be filled out collaboratively with the work crew, and all affected personnel must sign off at the end. The following steps outline how to accurately fill out the form.

  1. Insert Company Name & Logo: Write the name and logo of your company at the top of the form.
  2. Project Name & Number: Clearly specify the project name and its corresponding number.
  3. Date: Enter the date of the job briefing.
  4. Job Number: Fill in the specific job number associated with this task.
  5. Job Name: Provide the name of the job being performed.
  6. Physical Address: Write the physical address where the job will take place.
  7. Longitude and Latitude: Include the geographical coordinates of the job site.
  8. Supervisor/Crew Lead: Name the supervisor or crew lead responsible for the job.
  9. Emergency Procedures: List relevant emergency contact numbers and attach directions to the site.
  10. Job/Tasks for Today: Check the type of work being performed and specify any relevant details.
  11. Jobsite Exposures: Identify potential hazards related to the job site and check applicable items.
  12. Hazard Control Measures: Document the safety measures and personal protective equipment (PPE) that will be used.
  13. Civil Work Details: If applicable, describe the type and depth of excavations and any necessary safety measures.
  14. Fall Protection: If working at heights, describe the fall protection system and equipment to be used.
  15. Reviews and Signatures: Have the General Contractor Superintendent or Foreman and subcontractor supervisors sign and date the form.
  16. Project Personnel Acknowledgement: Ensure all affected personnel sign their names and indicate their CPR/First Aid status.

Frequently Asked Questions

  1. What is the purpose of the Job Briefing form?

    The Job Briefing form is designed to ensure that all personnel involved in a project are informed about the job details, potential hazards, and emergency procedures before work begins. It serves as a communication tool to promote safety and awareness among the crew.

  2. Who needs to complete the Job Briefing form?

    The form must be completed by the work crew, including the supervisor or crew lead. All affected personnel are required to sign off in Block 9, indicating that they have participated in the briefing and understand the job requirements and safety measures.

  3. What information is required on the Job Briefing form?

    Key information includes:

    • Date
    • Job Number
    • Job Name
    • Physical Address
    • Longitude and Latitude
    • Supervisor/Crew Lead

    This information helps to track and identify the specific job being performed.

  4. What should be included in the Emergency Procedures section?

    This section should list important telephone numbers, such as emergency services, and provide directions to the job site. It is crucial to confirm whether 911 systems are functional with cell phone use and to outline any specific rescue procedures that may be necessary.

  5. How are job tasks categorized on the form?

    Job tasks are categorized based on the type of work being performed, such as:

    • Incidental Lift (<10T)
    • Medium Lift (10T - 50T)
    • Heavy Lift (>50T)
    • Working at Height > 6 feet
    • General Construction

    These categories help to assess the level of risk and the necessary safety precautions.

  6. What are some common jobsite exposures listed on the form?

    The form includes various physical and health hazards, such as:

    • Confined Space
    • Chemical Exposure
    • Slips, Trips, and Falls
    • Heat Stress
    • High Noise Levels

    Identifying these exposures is essential for implementing appropriate safety measures.

  7. What types of hazard control measures are included?

    The form outlines several hazard control measures, including:

    • Personal Protective Equipment (PPE)
    • Safety Systems and Training
    • Lock-Out/Tag-Out procedures
    • Fall Protection Systems

    These measures are vital for minimizing risks associated with the job tasks.

  8. What should be done if excavation is involved?

    If excavation is greater than 5 feet deep, an engineer-approved trenching plan is required. The form prompts users to describe the type and depth of excavations and any cave-in control measures that will be implemented.

  9. How is fall protection addressed in the form?

    The form includes a section for detailing the type of elevated work and the fall protection systems to be used. Employees must inspect their fall protection equipment before use, ensuring it is safe and functional.

  10. What is the significance of the signatures in Block 9?

    Signatures in Block 9 indicate that all affected personnel have participated in the job briefing and acknowledge their understanding of the job requirements and safety protocols. This is an important step in promoting accountability and safety on the job site.

Common mistakes

Filling out the Job Briefing form is a crucial step in ensuring workplace safety. However, many individuals make common mistakes that can lead to confusion or incomplete information. One significant error is failing to provide accurate contact information for emergency procedures. It's essential to list the correct telephone numbers and directions to the site. If an emergency arises, having this information readily available can save valuable time and potentially lives. Double-checking these details before submission can make a substantial difference.

Another frequent mistake occurs when individuals neglect to involve all affected personnel in the sign-off process. The form requires that everyone who will be impacted by the job signs off in Block 9. This step is not merely a formality; it ensures that all team members are aware of the hazards and safety measures in place. By omitting this critical step, you risk leaving some team members uninformed, which could lead to dangerous situations on the job site.

Inadequate detail in describing the job tasks for the day is another common pitfall. The section for job tasks should clearly outline the specific work being performed, including any relevant classifications such as medium or heavy lifts. If this information is vague or incomplete, it can lead to misunderstandings about the nature of the work and the associated risks. Providing precise descriptions helps everyone involved understand their roles and responsibilities, enhancing overall safety.

Lastly, some individuals overlook the importance of hazard control measures. The form includes a section dedicated to identifying and controlling hazards associated with the job. Failing to complete this section thoroughly can leave gaps in safety protocols. It is vital to specify the personal protective equipment (PPE) and safety systems that will be used. This not only protects individuals but also ensures compliance with safety regulations. Taking the time to fill out this section accurately fosters a safer working environment for everyone involved.

Documents used along the form

In any construction or job site environment, ensuring safety and clear communication is paramount. The Job Briefing form serves as a crucial tool for preparing the work crew for the tasks ahead, but it is often accompanied by several other important documents that enhance safety and efficiency. Here are four forms that are commonly used alongside the Job Briefing form:

  • Routine Job Hazard Analysis (JHA): This document identifies potential hazards associated with specific tasks or job sites. It outlines the risks involved and the necessary safety measures to mitigate those risks. Workers can refer to this analysis to understand what dangers they may encounter and how to protect themselves effectively.
  • Emergency Response Plan: This plan details the procedures to follow in case of an emergency, such as a fire, medical incident, or hazardous material spill. It includes contact information for emergency services and outlines evacuation routes. Having this plan readily available ensures that all personnel know how to respond quickly and efficiently during a crisis.
  • Safety Data Sheets (SDS): These sheets provide detailed information about the chemicals and materials used on the job site. They include hazard identification, handling instructions, and first aid measures. Access to SDS ensures that workers are informed about the substances they are working with and how to handle them safely.
  • Personal Protective Equipment (PPE) Checklist: This checklist outlines the required safety gear for specific tasks. It ensures that all workers are equipped with the necessary protective equipment, such as helmets, gloves, and safety glasses, before beginning work. A thorough checklist helps prevent injuries and promotes a culture of safety on the job site.

By utilizing these forms in conjunction with the Job Briefing form, teams can create a safer working environment. Clear communication, thorough planning, and adherence to safety protocols are essential for the well-being of all personnel involved in any project.

Similar forms

  • Job Hazard Analysis (JHA) Form: Similar to the Job Briefing form, the JHA form focuses on identifying potential hazards associated with specific tasks. Both documents require input from the work crew and emphasize safety measures and emergency procedures.
  • Safety Data Sheet (SDS): An SDS provides detailed information about hazardous materials on site. Like the Job Briefing form, it outlines risks and necessary precautions, ensuring that all personnel are aware of potential dangers.
  • Incident Report Form: This form documents any accidents or near-misses that occur on the job. Both forms aim to enhance safety by analyzing risks and reinforcing safety protocols to prevent future incidents.
  • Daily Safety Checklist: A daily safety checklist is used to ensure that safety measures are in place before work begins. Similar to the Job Briefing form, it promotes awareness of hazards and compliance with safety standards.
  • Toolbox Talk Form: This form records discussions about safety topics among crew members. Like the Job Briefing form, it encourages communication about risks and safety practices before starting work.
  • Permit to Work (PTW): The PTW is a formal document that authorizes specific work activities. It shares similarities with the Job Briefing form in that both require a thorough review of hazards and safety measures before work commences.
  • Emergency Action Plan (EAP): An EAP outlines procedures to follow in case of an emergency. Both the EAP and the Job Briefing form emphasize preparedness and the importance of knowing emergency contacts and procedures.
  • Risk Assessment Form: This form evaluates the risks associated with specific tasks. It is similar to the Job Briefing form in that both require a systematic approach to identifying and mitigating hazards before work begins.
  • Equipment Inspection Checklist: This checklist ensures that all tools and equipment are safe to use. Like the Job Briefing form, it highlights the importance of safety inspections and compliance with operational standards.

Dos and Don'ts

When filling out the Job Briefing form, it is essential to approach the task with care and attention to detail. Here are four important do's and don'ts to keep in mind:

  • Do ensure that all required fields are filled out completely.
  • Do have all affected personnel sign off in Block 9 after the job briefing.
  • Don't leave any sections blank unless they are not applicable to your specific job.
  • Don't rush through the form; take the time to verify that all information is accurate.

Misconceptions

Understanding the Job Briefing form is crucial for ensuring safety and compliance on job sites. However, several misconceptions can lead to misunderstandings about its purpose and use. Here are seven common misconceptions:

  • The Job Briefing form is optional. Many believe that completing the form is not mandatory. In reality, it is a critical tool for ensuring that all personnel are aware of potential hazards and safety protocols before starting work.
  • Only supervisors need to sign the form. Some think that only supervisors or crew leads need to sign off. In fact, all affected personnel should acknowledge their understanding of the job briefing by signing the form.
  • Emergency procedures are not important. There is a misconception that emergency procedures can be overlooked. However, knowing how to respond in an emergency is vital for the safety of all workers on site.
  • Job hazards are only physical. Many assume that job hazards are limited to physical dangers. This is not true; health hazards, such as chemical exposure or high noise levels, must also be addressed in the briefing.
  • Completing the form is a one-time task. Some believe that once the form is filled out, it does not need to be revisited. In reality, it should be updated regularly, especially if conditions change or new tasks are introduced.
  • Only construction workers need to participate. There is a misconception that only those directly involved in construction need to be briefed. However, all personnel on site, including support staff, should be included in the briefing process.
  • The form is just paperwork. Many view the Job Briefing form as mere paperwork. In truth, it serves as a vital communication tool that helps prevent accidents and injuries by ensuring everyone is informed and prepared.

By dispelling these misconceptions, teams can foster a safer and more efficient work environment. Understanding the true purpose and importance of the Job Briefing form is essential for everyone involved.

Key takeaways

Filling out and using the Job Briefing form is a crucial step in ensuring workplace safety. Here are ten key takeaways to consider:

  • Complete the Form Before Work Begins: Ensure that the Job Briefing form is filled out with the work crew before starting any tasks. This helps everyone understand their roles and responsibilities.
  • Sign-Off Required: All affected personnel must sign off in Block 9 of the form. This acknowledgment is essential for accountability.
  • Emergency Procedures: Clearly list emergency contact numbers and procedures. Make sure everyone knows how to reach help quickly if needed.
  • Identify Job Tasks: Specify the type of work being performed, whether it’s a lift, plumbing, or general construction. This helps in assessing the associated risks.
  • Assess Jobsite Exposures: Note any potential hazards, such as physical or health risks. Identifying these risks is key to preventing accidents.
  • Implement Hazard Control Measures: Document the personal protective equipment (PPE) and safety systems that will be used. This ensures that everyone is equipped to handle potential dangers.
  • Follow Civil Work Guidelines: For civil work, ensure compliance with trenching and excavation safety protocols. An engineer-approved plan is necessary for deeper excavations.
  • Fall Protection Protocols: When working at heights, specify the fall protection systems in place. This is vital for worker safety.
  • Review and Signatures: Obtain signatures from the general contractor superintendent and subcontractor supervisor. This confirms that all parties are aware of the safety measures in place.
  • Personnel Acknowledgment: Ensure all affected personnel acknowledge their understanding of the job briefing by signing the form. This step reinforces the importance of safety awareness.