Hud 92541 Template

Hud 92541 Template

The HUD 92541 form is a Builder's Certification required by the U.S. Department of Housing and Urban Development. This form helps ensure that newly constructed properties meet safety and environmental standards. It is essential for builders to complete this form accurately to facilitate the financing process.

To get started on filling out the HUD 92541 form, please click the button below.

Table of Contents

The HUD 92541 form, also known as the Builder's Certification of Plans, Specifications, and Site, plays a crucial role in the construction and financing of residential properties under the Federal Housing Administration (FHA) guidelines. This form is essential for builders and lenders, as it ensures that new constructions meet specific safety and environmental standards. It requires builders to provide detailed site analysis information, addressing potential hazards such as flood risks, noise pollution, and proximity to explosive materials or toxic waste sites. The form also mandates compliance with various building codes and regulations, confirming that the construction adheres to HUD's Minimum Property Standards. Additionally, it includes sections for builders to certify their compliance with fair housing marketing plans, ensuring that housing opportunities are accessible to all individuals, regardless of their background. By requiring builders to affirm the accuracy of the information provided, the HUD 92541 form safeguards the interests of homeowners and lenders alike, ultimately contributing to the integrity of the housing market.

Hud 92541 Sample

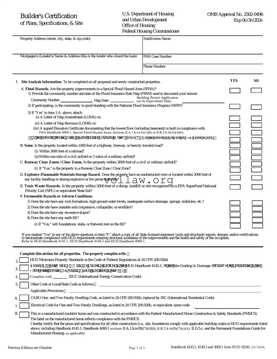
Builder's Certification

 

U.S. Department of Housing

OMB Approval No. 2502-0496

of Plans, Specifications, & Site

 

and Urban Development

Exp 06/30/2026

 

Office of Housing

 

 

 

 

 

 

 

 

 

 

Federal Housing Commissioner

 

 

 

 

 

 

 

 

 

Property Address (street, city, state, & zip code):

 

 

 

Subdivision Name:

 

 

 

 

 

 

 

Mortgagee's (Lender's) Name & Address (this is the lender who closed the loan):

FHA Case Number:

 

 

 

 

 

 

 

 

 

 

 

 

 

 

 

Phone Number:

 

 

 

 

 

 

 

1. Site Analysis Information: To be completed on all proposed and newly constructed properties.

YES

NO

A. Flood Hazards. Are the property improvements in a Special Flood Hazard Area (SFHA)?

 

 

1) Provide the community number and date of the Flood Insurance Rate Map (FIRM) used to document your answer.

 

 

Community Number:

 

Map Date:

 

Building Permit Application

 

 

 

 

(or its Equivalent) Date:

 

 

2)If participating, is the community in good standing with the National Flood Insurance Program (NFIP)?

3)If "Yes" to item 1.A. above, attach:

(i)A Letter of Map Amendment (LOMA) or;

(ii)A Letter of Map Revision (LOMR) or;

(iii)A signed Elevation Certificate documenting that the lowest floor (including basement) is built in compliance with

FHA Handbook 4000.1, Special Flood Hazard Areas, Sections II.A.1.b.iv(A)(1)(b) or II.B.2.b.iii(A)(4)(b).

 ,VWKHSURSHUW\ORFDWHGZLWKLQD&RDVW%DUULHU5HVRXUFH6\VWHP &%56 " ,I\HVWKHSURSHUW\LVLQHOLJLEOHIRU)+$LQVXUHGILQDQFLQJ .

B. Noise. Is the property located within 1000 feet of a highway, freeway, or heavily traveled road?

(i) Within 3000 feet of a railroad?

(ii)Within one mile of a civil airfield or 5 miles of a military airfield?

C. Runway Clear Zones / Clear Zones. Is the property within 3000 feet of a civil or military airfield?

(i)If "Yes," is the property in a Runway Clear Zone / Clear Zone?

D.Explosive /Flammable Materials Storage Hazard. Does the property have an unobstructed view or located within 2000 feet of any facility handling or storing explosive or fire prone materials?

E.Toxic Waste Hazards. Is the property within 3000 feet of a dump, landfill or site recognized on a EPA Superfund National Priority List (NPL) or equivalent State list?

F.Foreseeable Hazards or Adverse Conditions.

1)Does the site have any rock formations, high ground water levels, inadequate surface drainage, springs, sinkholes, etc.?

2)Does the site have unstable soils (expansive, collapsible, or erodible)?

3)Does the site have any excessive slopes?

4)Does the site have any earth fill?

(i)If "Yes," will foundations, slabs, or flatwork rest on the fill?

If you marked "Yes" to any of the above questions in item "F," attach a copy of all State licensed engineers' (soils and structural) reports, designs, and/or certifications to demonstrate compliance with HUD requirements ensuring structural soundness of the improvements and the health and safety of the occupants.

Refer to HUD Handbook 4145.1, HUD Handbook 4140.3 and HUD Handbook 4000.1.

Complete this section for all properties. The property complies with:

2.HUD Minimum Property Standards in the Code of Federal Regulations at 24 CFR 200.926d.

$SSHQGL[6LWH*UDGLQJ 'UDLQDJHJXLGHOLQHLQFOXGHGLQWKHHUD Handbook 4145.1, RUWKHSite Grading & Drainage UHTXLUHPHQWVLQFRUSRUDWHGLQWKH

3./RFDO6WDWHDGRSWHG,5&%XLOGLQJ&RGHLGHQWLILHGLQLWHP.

4.

Complies with

 

IECC (International Energy Conservation Code).

5.Other Code or Local/State Code as follows:

Applicable Provisions:

6.CABO One- and Two-Family Dwelling Code, as listed in 24 CFR 200.926b, replaced by IRC (International Residential Code).

7.Electrical Code for One-and-Two-Family Dwellings, as listed in 24 CFR 200.926b, or equivalent, name code:

8.This is a manufactured (mobile) home and was constructed in accordance with the Federal Manufactured Home Construction & Safety Standards (FMHCS).

The label on the manufactured home reflects compliance with the FMHCS.

I hereby certify that the plans and specifications for all other construction (i.e., site, foundation) comply with applicable building codes or HUD requirements listed above, including Handbook 4145.1, Handbook 4000.1 sections II.A.1.b.iv(B)(7)(c)(ii), II.B.2.b.iii(B)(7)(c)(ii), II.D.5.c, and the Permanent Foundations Guide for

Manufactured Housing, as applicable.

Previous Editions are Obsolete

Page 1 of 3

Handbook 4145.1, 4140.3 and 4000.1 form HUD-92541 (10/2024)

HUD Label Number(s):

Builder or Builder's Agent: I hereby certify that the site analysis information above is true and accurate to the best of my knowledge and belief and that the plans and specifications were designed to mitigate any foreseeable hazards or adverse conditions. On all properties eligible for maximum LTV financing, I further certify that I have personally reviewed the plans, specifications, and site information submitted herewith . Based upon my review, I hereby certify that such plans, specifications comply with the applicable building codes specified above as well as complying with the HUD construction requirements listed above. An "X" marked in the blank by each numbered item indicates that provisions from the marked code apply.

9.a. Name of Builder's Company or Builder's Agent (type or print):

10.a. Name & Title of Builder or Builder's Agent (type or print):

b. Street Address:

b. Signature of Builder or Builder's Agent Date:

Date:

c. City, State, & Zip Code:

c. Telephone Number (include area code:)

11. Affirmative Fair Housing Marketing Plan (AFHMP)Did you sell five (5) or more houses in the last twelve (12) months or do you intend to

YES

NO

sell five (5) or more houses within the next twelve (12) months with HUD mortgage insurance?

 

 

 

 

If "Yes," check either a, b, c, or d below.

 

 

 

 

a. I am a signatory in good standing to a Voluntary Affirmative Marketing Agreement (VAMA).

 

 

 

 

b. I have an AFHMP which HUD approved on (mm/dd/yyyy)

 

 

 

 

 

c. I have a contract with

 

to market this SURSHUW\"

 

 

d. I certify that I will comply with the following: (a) Carry out an affirmative program to attract all minority and majority groups to the housing for initial sale or rental. Such a program shall typically involve publicizing to minority persons the availability of housing opportunities regardless of race, color, religion, sex, handicap, familial status or national origin, through the type of media customarily utilized by the applicants; (b) Maintain a nondiscrimination hiring policy in recruiting from both minority and majority groups;

(c)Instruct all employees and agents in writing and orally in the policy of nondiscrimination and fair housing; (d) &onspicuously

display the Fair Housing Poster in all Sales Offices, include the Equal Housing Opportunity logo, slogan and statement in all printed material used in connection with sales, and post in a prominent position at the project site a sign which displays the Equal Opportunity logo, slogan or statement, as listed in 24 CFR 200.620 and appendix to subpart M to part 200. I understand that I am obliged to develop and maintain records on these activities, and to make them available to HUD upon request.

Builder: I hereby certify that the site analysis information is true and accurate to the best of my knowledge and belief. I further certify that on all properties eligible for maximum LTV financing, the plans and specifications submitted herewith have been reviewed by the individual signing above and that the individual has the knowledge and experience necessary to determine whether such plans and specifications comply with the HUD/FHA requirements set forth at 24 CFR 200.926d and with other applicable HUD requirements as determined in accordance with 24 CFR 200.926(d)(1) and (2). Any subsequent changes to these plans and specifications shall comply with the aforementioned requirements. Upon sale or conveyance of the property, the undersigned will promptly furnish to the lender a Warranty of Completion of Construction, form HUD-92544 on all properties eligible for maximum LTV financing.

12 a. Name of Builder's Company (type or print):

13 a. Name & Title of Builder (type or print):

b. Street Address:

b. Signature of Builder:

Date:

c. City, State, & Zip Code:

c. Telephone Number (include area code):

I, the undersigned, certify under penalty of perjury that the information provided above is true and correct.

WARNING: Anyone who knowingly submits a false claim, or makes false statements is subject to criminal and civil penalties, including confinement for up to 5 years, fines, and civil penalties. (18 U.S.C. 1001, 1010, 1012; 31 U.S.C. 3729).

This form must be complete and legible and must be reproduced to include all three pages.

Public reporting burden for this collection of information is estimated to average 15 minutes per response, including the time for reviewing instructions, searching existing data sources, gathering and maintaining the data needed, and completing and reviewing the collection of information. This agency may not collect this information, and you are not required to complete this form, unless it displays a currently valid OMB control number.

Executive Order 11988 and HUD environmental regulations (24 CFR Part 51) require builders who build newly constructed properties to ensure that the property is not affected by: flood hazards, noise, runway clear zones, explosive/flammable materials storage hazards, toxic waste hazards, and other foreseeable hazards that may affect the site.

HUD requires this information to determine whether the site/location factors would adversely affect the dwelling or homeowner. A response is required whenever a builder builds new properties. Confidentiality is not applicable.

Previous Editions are Obsolete

Page 2 of 3

Handbook 4145.1, 4140.3 and 4000.1 form HUD-92541 (10/2024)

Instructions for Builder's Certification, form HUD-92541

Item 1. Site Analysis: All builders must answer all the questions in this item. An addendum may be added, if necessary, to provide a full explanation about any of the site conditions listed.

A. Flood Hazards: HUD prohibits new construction in Special Flood Hazard Areas unless there is a Letter of Map Amendment (LOMA), a Letter of Map Revision (LOMR), or an Elevation Certificate in accordance with 24 CFR 200.926d(c)(4) provided to the lender.

Items 1.B-F The builder must provide this information for all properties. If the property is a condominium, the builder may have to mitigate

the site issue if the project has not yet been approved by HUD. B. Noise: Self-explanatory.

C. Runway Clear Zones/Clear Zones: If the property is located in a Runway Clear Zone / Clear Zone, the lender must require, as a condition of borrower approval, that the borrower will sign a statement acknowledging receipt of the notification required by 24 CFR 51.303(a)(3).

D. Explosive/Flammable Materials Storage Hazard: Self-explanatory

E. Toxic Waste Hazards: Self-explanatory.

F. Foreseeable Hazards or Adverse Conditions: Self-explanatory.

Items 2-8: The builder/builder’s agent must complete these items as follows:

Items 2, 3 &4. Place an "X" in the box in Items 2, 3 and 4. The certified builder must complete Items 5 thru 8 as follows:

Item 5. The local/State code in Item 5 is the accepted code for a locality. The additional requirements needed from the Table in 24 CFR 200.926c, to supplement a partially acceptable local code, must be shown in Item 5.

Item 6. When the whole CABO Code is used as the HUD referenced code in jurisdictions with “no code” or an “unacceptable code,” place an “X” in the box in Item 6 and place the word “All” in the space.

Item 7. Place an “X” in the box on line 7, and, if applicable name equivalent code.

Item 8. If the dwelling is a manufactured (mobile) home, place an “X” in the box in Item 8. Properly complete lines 4 through 7 for all “foundation and site work.” Insert the HUD label number(s) in the box provided.

Items 9 & 10. The builder or the builder’s agent must complete and sign these items. If the builder’s agent completes and signs these items, the agent is certifying that they have the knowledge and experience to determine whether the plans and specifications comply with HUD/FHA requirements set forth in 24 CFR 200.926d and with other applicable HUD requirements in 24 CFR200.926(d)(1) and (2). The builder’s agent further declares that the site information is true and accurate to the best of their knowledge and belief.

Item 11. If a builder has sold or intends to sell five (5) or more newly

constructed properties within a twelve (12) month period, the builder is required to have one of the following:

a. Be in good standing to a Voluntary Affirmative Marketing Agreement (VAMA); b. Have a HUD approved Affirmative Fair Housing Marketing Plan (AFHMP);

c. Have a contract with a Marketing Agent to implement its approved AFHMP; or a contract with a Marketing Agent with signatory to a National Association of Realtors VAMA; or

d. Certify to the requirements which are hereby listed, taken from 24 CFR 200.620.

Items 12 & 13. The builder must complete and sign Items 12 and 13. The certification is self-explanatory. All changes to the original form must be initialed and dated by the builder.

Appraiser / Direct Endorsement Lender's Responsibility

FHA Roster Appraiser. The appraiser must receive a fully executed form HUD-92541 before performing the appraisal on proposed or under construction properties or properties less than one year old and never occupied.

The appraiser must review Item 1 and note in the Appraisal Report any discrepancies between the information in Item 1 and the actual conditions observed on site. The appraiser must take into consideration the effects of any site conditions on the value of the property.

Direct Endorsement Underwriter. The DE Underwriter must review the

Appraisal Report and the Builder Certification as part of the underwriting process, taking into consideration the effect of any site conditions on the value of the property. Page 1 of this form must be complete and legible.

The Mortgagee must provide the Appraiser with a fully executed form HUD-92541, signed and dated no more than 30 Days prior to the date the appraisal was ordered. The DE Underwriter cannot change and/or modify this certification form.

Previous Editions are Obsolete

Page 3 of 3

Handbook 4145.1, 4140.3 and 4000.1 form HUD-92541 (10/2024)

 

 

Document Attributes

Fact Name Details
Purpose The HUD 92541 form serves as a Builder's Certification of Plans, Specifications, and Site Analysis for properties seeking FHA mortgage insurance.
Site Analysis Requirement All builders must complete the site analysis section, addressing potential hazards such as flood risks and noise proximity.
Governing Laws This form is governed by various laws, including 24 CFR 200.926d and HUD Handbooks 4145.1 and 4000.1.
Certification Builders must certify that the information provided is true and accurate, ensuring compliance with applicable building codes and HUD requirements.
Affirmative Fair Housing If a builder sells five or more homes in a year, they must comply with Affirmative Fair Housing Marketing Plan requirements.

Hud 92541: Usage Instruction

Completing the HUD 92541 form is an essential step in ensuring compliance with federal housing regulations. This form requires detailed information about the property and site conditions to assess any potential hazards. Once the form is filled out, it will be submitted to the lender, who will use it to evaluate the property’s eligibility for financing.

  1. Gather Required Information: Before starting, collect all necessary details such as the property address, subdivision name, lender's name and address, FHA case number, and your contact information.
  2. Complete the Property Address Section: Fill in the street address, city, state, and zip code of the property. Include the subdivision name.
  3. Enter Lender Information: Write the name and address of the mortgagee (lender) who closed the loan.
  4. Provide FHA Case Number: Input the FHA case number assigned to the property.
  5. Site Analysis Information: Answer the questions in this section regarding flood hazards, noise, runway clear zones, explosive materials, toxic waste, and any foreseeable hazards. Mark "Yes" or "No" as applicable.
  6. Attach Supporting Documents: If you answered "Yes" to any questions in the site analysis, include any required documentation, such as Letters of Map Amendment or Revision, or Elevation Certificates.
  7. Compliance with Standards: Indicate whether the property complies with HUD Minimum Property Standards and any applicable local codes. Place an "X" in the appropriate boxes.
  8. Complete Builder Certification: Fill out the builder's name, company name, address, and contact details. Sign and date the certification statement to affirm the accuracy of the information provided.
  9. Affirmative Fair Housing Marketing Plan: If applicable, indicate whether you sold or plan to sell five or more houses in the last or next twelve months. Provide the necessary details regarding your marketing plan.
  10. Final Review: Review the entire form for completeness and accuracy. Ensure all sections are filled out legibly and all required signatures are included.

Frequently Asked Questions

  1. What is the HUD 92541 form?

    The HUD 92541 form, also known as the Builder's Certification of Plans, Specifications, and Site, is a document required by the U.S. Department of Housing and Urban Development (HUD). It certifies that the construction plans and specifications for a property comply with applicable building codes and HUD requirements. This form is essential for properties seeking FHA mortgage insurance.

  2. Who needs to complete the HUD 92541 form?

    Builders or builders' agents are responsible for completing the HUD 92541 form. They must provide accurate information regarding the property, including site analysis and compliance with building codes. The builder certifies that the information is true and that the construction meets HUD standards.

  3. What kind of site analysis information is required?

    The site analysis section requires builders to assess various potential hazards that could affect the property. This includes:

    • Flood hazards
    • Noise from highways or railroads
    • Proximity to airfields
    • Storage of explosive or flammable materials
    • Toxic waste hazards
    • Other foreseeable hazards

    Builders must answer these questions truthfully and provide additional documentation if necessary.

  4. What happens if a property is located in a Special Flood Hazard Area?

    If a property is in a Special Flood Hazard Area (SFHA), HUD requires specific documentation to proceed. This includes a Letter of Map Amendment (LOMA), a Letter of Map Revision (LOMR), or an Elevation Certificate. These documents help ensure that the property is built to withstand potential flooding.

  5. What are the consequences of providing false information on the HUD 92541 form?

    Providing false information on the HUD 92541 form can lead to serious legal consequences. Individuals who knowingly submit false claims may face criminal and civil penalties, including fines and imprisonment. It is crucial to ensure all information is accurate and complete.

  6. Is there a deadline for submitting the HUD 92541 form?

    The HUD 92541 form must be submitted before the appraisal of the property. It should be fully executed and signed no more than 30 days prior to the appraisal date. This ensures that the appraiser has the most current information about the property.

  7. What is the purpose of the Affirmative Fair Housing Marketing Plan (AFHMP) section?

    The AFHMP section is required for builders who sell five or more houses within a year. It ensures that builders are actively promoting fair housing practices. Builders must either be in good standing with a Voluntary Affirmative Marketing Agreement or have an approved AFHMP to comply with HUD requirements.

  8. How does the HUD 92541 form impact the appraisal process?

    The appraiser must receive a completed HUD 92541 form before conducting an appraisal on newly constructed properties or those that are less than one year old. The appraiser reviews the site analysis information and notes any discrepancies in the appraisal report. This information can affect the property's value.

  9. Where can I find more information about the HUD 92541 form?

    For more details, builders can refer to HUD Handbooks 4145.1, 4140.3, and 4000.1. These documents provide guidance on the requirements and procedures related to the HUD 92541 form and other HUD regulations.

Common mistakes

Filling out the HUD 92541 form can be challenging, and mistakes can lead to delays or complications in the approval process. One common error is failing to complete all required sections. Each part of the form is essential, and missing information can result in rejection. Builders should ensure that they answer every question thoroughly and accurately.

Another frequent mistake involves overlooking the site analysis section. This part requires builders to assess potential hazards, such as flood zones or noise from nearby highways. Builders sometimes skip these questions or provide incomplete answers. It's crucial to address all items in this section, as they help determine the property's suitability for FHA financing.

Inaccurate or outdated information can also cause problems. For example, builders might provide an old Flood Insurance Rate Map date or incorrect community numbers. It's vital to verify that all data is current and matches official records. This attention to detail can prevent unnecessary back-and-forth with lenders.

Many builders forget to attach necessary documentation. If the property is in a Special Flood Hazard Area, for instance, a Letter of Map Amendment or an Elevation Certificate is required. Failing to include these documents can halt the approval process. Builders should check their submissions to ensure all supporting materials are attached.

Signature errors are another common oversight. Builders or their agents must sign the form, and any changes to the original must be initialed. Missing signatures or initials can render the form invalid. It's essential to double-check that all required signatures are present before submitting the form.

Lastly, builders sometimes neglect to keep a copy of the completed form for their records. Having a copy can be invaluable for future reference or if any questions arise during the approval process. It's a simple step that can save time and confusion later on.

Documents used along the form

The HUD 92541 form, also known as the Builder's Certification of Plans, Specifications, and Site, is a crucial document in the home construction and mortgage process. It ensures that the property meets specific HUD standards and is safe for future occupants. Along with this form, several other documents are typically required to provide a comprehensive view of the property’s compliance and readiness for financing. Below is a list of related forms that are often used in conjunction with the HUD 92541.

  • Warranty of Completion of Construction (HUD-92544) - This form is required to certify that the construction of the property has been completed in accordance with the approved plans and specifications. It provides assurance to the lender that the property is ready for occupancy and meets all necessary standards.
  • FHA Case Number Assignment - This document assigns a unique case number to the FHA loan application. It is essential for tracking the loan throughout the underwriting and approval process, linking all related documents to the specific transaction.
  • Elevation Certificate - This certificate is used to determine the elevation of a property in relation to flood zones. It is particularly important for properties located in flood-prone areas, as it helps assess insurance requirements and compliance with floodplain management regulations.
  • Letter of Map Amendment (LOMA) - A LOMA is a request to amend the official flood map, indicating that a property is not located in a Special Flood Hazard Area. This document can help reduce or eliminate flood insurance requirements for the homeowner, making the property more financially accessible.
  • Affirmative Fair Housing Marketing Plan (AFHMP) - This plan outlines the builder's commitment to fair housing practices. It is particularly important for builders intending to sell multiple homes, ensuring compliance with federal fair housing laws and promoting equal housing opportunities.

These documents, alongside the HUD 92541 form, play a vital role in the overall process of securing FHA financing for newly constructed homes. Each form serves a specific purpose, ensuring that all aspects of the property and its construction meet the necessary standards for safety, compliance, and fair housing practices. Understanding and preparing these documents can significantly streamline the financing process and facilitate a smoother transition into homeownership.

Similar forms

The HUD 92541 form, known as the Builder's Certification of Plans, Specifications, and Site, serves a crucial role in ensuring that new properties meet specific safety and construction standards. It shares similarities with several other important documents in the realm of real estate and construction. Here are seven documents that are comparable to the HUD 92541 form:

  • FHA 92900-A: This form is used for loan application and underwriting. Like the HUD 92541, it requires detailed information about the property and ensures compliance with FHA guidelines.
  • HUD 92544: Known as the Warranty of Completion of Construction, this document certifies that the construction is completed according to the approved plans. It complements the HUD 92541 by providing assurance of compliance post-construction.
  • FHA 203(k) Rehabilitation Mortgage Insurance Program: This program allows for financing both the purchase and renovation of a property. Similar to the HUD 92541, it requires a thorough assessment of the property’s condition and compliance with safety standards.
  • Site Plan Approval: This document outlines the proposed layout of a property. Like the HUD 92541, it addresses site-specific issues such as zoning, flood hazards, and environmental impacts.
  • Environmental Assessment (EA): An EA evaluates the potential environmental impacts of a proposed project. Both the EA and HUD 92541 ensure that environmental factors are considered before construction begins.
  • Building Permit Application: This application is necessary for obtaining permission to begin construction. It requires similar site analysis and compliance documentation as the HUD 92541.
  • Certificate of Occupancy: Issued after construction is complete, this certificate confirms that a building is safe for occupancy. It relates to the HUD 92541 in that both documents verify compliance with safety and building standards.

Understanding these documents and their connections to the HUD 92541 is vital for builders, lenders, and homeowners alike. Each document plays a significant role in ensuring that properties are safe, compliant, and ready for occupancy.

Dos and Don'ts

When filling out the HUD 92541 form, it is essential to adhere to specific guidelines to ensure accuracy and compliance. Below is a list of do's and don'ts to consider.

  • Do provide complete and accurate information in all sections of the form.
  • Do attach any required documentation, such as Letters of Map Amendment or Elevation Certificates, when applicable.
  • Do review the form thoroughly before submission to ensure no sections are left blank.
  • Do sign and date the form to validate the information provided.
  • Don't omit any critical details related to site conditions or hazards.
  • Don't submit the form without ensuring all required signatures are obtained.
  • Don't provide false or misleading information, as this can lead to severe penalties.
  • Don't forget to keep a copy of the completed form for your records.

Misconceptions

  • Misconception 1: The HUD 92541 form is only necessary for properties in flood zones.

    This is incorrect. While flood hazards are a critical component of the form, it also addresses various other site conditions. These include noise levels, proximity to hazardous materials, and potential toxic waste sites. The form is designed to assess a comprehensive range of environmental risks that could affect the property.

  • Misconception 2: Only the builder needs to complete the HUD 92541 form.

    In reality, both the builder and the builder's agent are required to certify the information. This ensures that the data provided is accurate and that the individuals involved have the necessary knowledge to verify compliance with HUD requirements.

  • Misconception 3: The HUD 92541 form is a one-time requirement.

    This form must be completed and signed before the appraisal of newly constructed properties. Additionally, any changes to the original plans must be documented and initialed by the builder. Therefore, it is an ongoing obligation throughout the construction process.

  • Misconception 4: The information on the HUD 92541 form is not subject to verification.

    This assumption is misleading. The information provided is subject to scrutiny by appraisers and underwriters during the approval process. Discrepancies between the form and actual site conditions can impact the property's valuation and financing eligibility.

Key takeaways

Filling out the HUD 92541 form is an important step in the construction process for properties seeking FHA financing. Here are some key takeaways to keep in mind:

  • Purpose of the Form: The HUD 92541 is a Builder's Certification form that verifies compliance with HUD requirements and building codes.
  • Site Analysis: Builders must complete a site analysis, addressing potential hazards like flood zones and noise levels.
  • Flood Hazards: If the property is in a Special Flood Hazard Area, specific documentation is required to proceed.
  • Noise Considerations: Properties near highways or railroads must be evaluated for noise impact.
  • Hazardous Materials: Builders must check for proximity to facilities storing explosive or flammable materials.
  • Toxic Waste: Properties near landfills or Superfund sites require careful assessment and documentation.
  • Compliance with Codes: Builders must certify compliance with local, state, and HUD building codes.
  • Affirmative Fair Housing: Builders selling multiple homes within a year must comply with fair housing marketing requirements.
  • Certification Requirements: The builder or their agent must sign the form, certifying its accuracy and completeness.
  • Appraiser's Role: Appraisers need the completed form before assessing properties under construction or less than one year old.

Completing the HUD 92541 form accurately is crucial for ensuring compliance and facilitating the financing process. Always double-check your entries and ensure all required documentation is attached.