Florida Proof Loss Template

Florida Proof Loss Template

The Florida Proof Loss form serves as a formal declaration required for individuals filing a claim under an insurance policy. This document outlines the specifics of the loss, including details about the insured property, the nature of the loss, and any other relevant information. It is essential to complete this form accurately to avoid legal repercussions and ensure a smooth claims process; click the button below to fill out the form.

Table of Contents

The Florida Proof Loss form serves as a critical document for individuals filing claims under their insurance policies. This form requires detailed information about the loss, including the date and time it occurred, the cause of the loss, and the amount of insurance coverage in place at the time. Insured individuals must provide their names, the insurance company’s name, and the claim number. Additionally, the form prompts users to disclose any mortgages or lienholders associated with the property, ensuring that all interested parties are accounted for. It also requires a description of any other insurance policies that may cover the loss, as well as any changes in title or occupancy during the policy term. The total amount of loss, including damages to buildings and contents, must be clearly stated, along with any applicable deductibles. Importantly, the form includes a sworn statement, affirming that all information provided is accurate and truthful. Failure to comply with these requirements can lead to serious legal consequences, including charges of fraud. The Florida Proof Loss form thus plays a vital role in the claims process, ensuring transparency and accountability for both the insured and the insurer.

Florida Proof Loss Sample

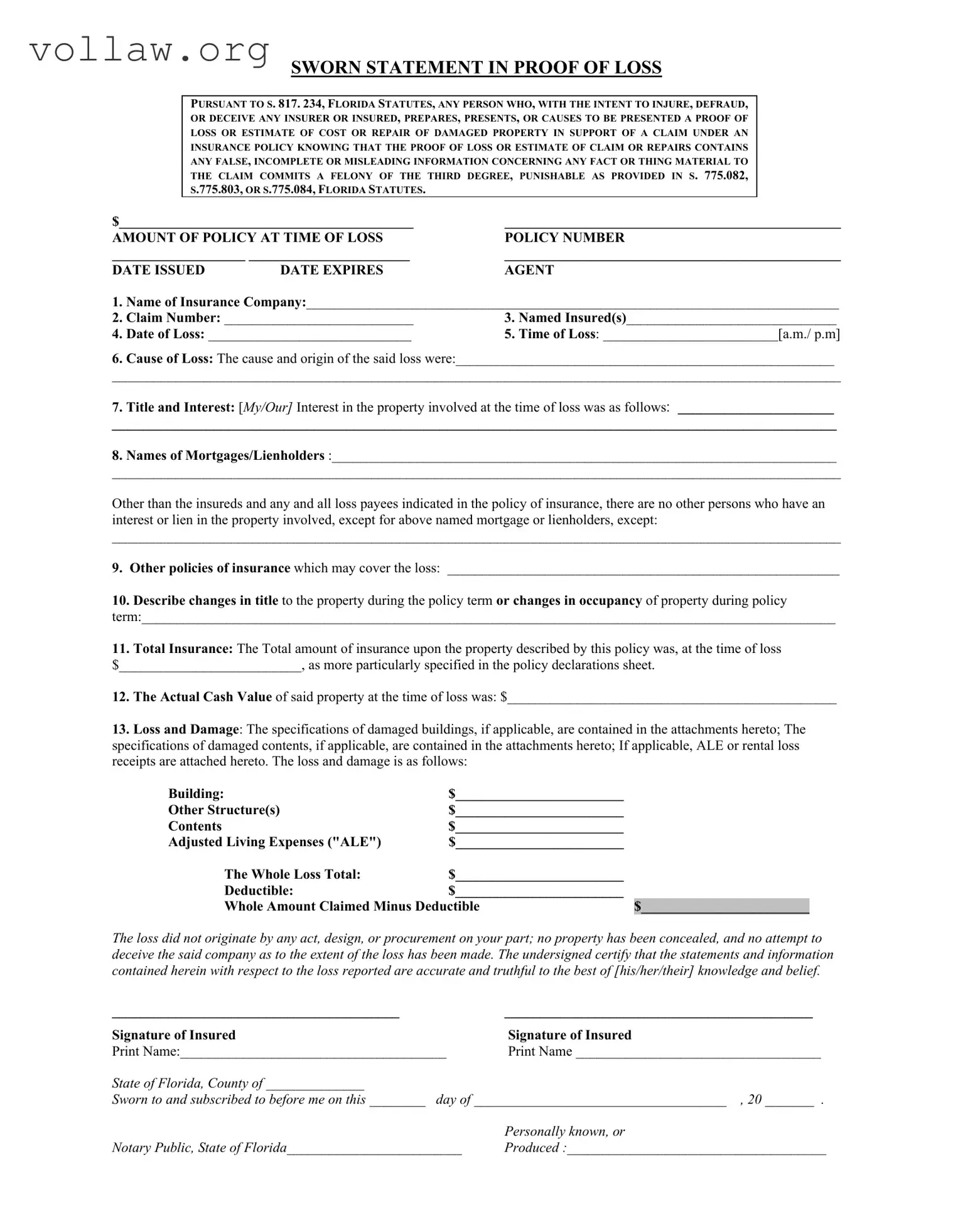
SWORN STATEMENT IN PROOF OF LOSS

PURSUANT TO S. 817. 234, FLORIDA STATUTES, ANY PERSON WHO, WITH THE INTENT TO INJURE, DEFRAUD, OR DECEIVE ANY INSURER OR INSURED, PREPARES, PRESENTS, OR CAUSES TO BE PRESENTED A PROOF OF LOSS OR ESTIMATE OF COST OR REPAIR OF DAMAGED PROPERTY IN SUPPORT OF A CLAIM UNDER AN INSURANCE POLICY KNOWING THAT THE PROOF OF LOSS OR ESTIMATE OF CLAIM OR REPAIRS CONTAINS ANY FALSE, INCOMPLETE OR MISLEADING INFORMATION CONCERNING ANY FACT OR THING MATERIAL TO THE CLAIM COMMITS A FELONY OF THE THIRD DEGREE, PUNISHABLE AS PROVIDED IN S. 775.082, S.775.803, OR S.775.084, FLORIDA STATUTES.

$__________________________________________

________________________________________________

AMOUNT OF POLICY AT TIME OF LOSS

POLICY NUMBER

___________________ _______________________

________________________________________________

DATE ISSUED

DATE EXPIRES

AGENT

1.Name of Insurance Company:____________________________________________________________________________

2.

Claim Number: ___________________________

3.

Named Insured(s)______________________________

4.

Date of Loss: _____________________________

5.

Time of Loss: _________________________[a.m./ p.m]

6.Cause of Loss: The cause and origin of the said loss were:______________________________________________________

________________________________________________________________________________________________________

7.Title and Interest: [My/Our] Interest in the property involved at the time of loss was as follows: ____________________

_____________________________________________________________________________________________

8.Names of Mortgages/Lienholders :________________________________________________________________________

________________________________________________________________________________________________________

Other than the insureds and any and all loss payees indicated in the policy of insurance, there are no other persons who have an interest or lien in the property involved, except for above named mortgage or lienholders, except:

________________________________________________________________________________________________________

9.Other policies of insurance which may cover the loss: ________________________________________________________

10.Describe changes in title to the property during the policy term or changes in occupancy of property during policy

term:___________________________________________________________________________________________________

11.Total Insurance: The Total amount of insurance upon the property described by this policy was, at the time of loss $__________________________, as more particularly specified in the policy declarations sheet.

12.The Actual Cash Value of said property at the time of loss was: $_______________________________________________

13.Loss and Damage: The specifications of damaged buildings, if applicable, are contained in the attachments hereto; The specifications of damaged contents, if applicable, are contained in the attachments hereto; If applicable, ALE or rental loss receipts are attached hereto. The loss and damage is as follows:

Building:

$________________________

 

Other Structure(s)

$________________________

 

Contents

$________________________

 

Adjusted Living Expenses ("ALE")

$________________________

 

The Whole Loss Total:

$________________________

 

Deductible:

$________________________

 

Whole Amount Claimed Minus Deductible

$________________________

The loss did not originate by any act, design, or procurement on your part; no property has been concealed, and no attempt to deceive the said company as to the extent of the loss has been made. The undersigned certify that the statements and information contained herein with respect to the loss reported are accurate and truthful to the best of [his/her/their] knowledge and belief.

_________________________________________

____________________________________________

Signature of Insured

Signature of Insured

Print Name:______________________________________

Print Name ___________________________________

State of Florida, County of ______________

Sworn to and subscribed to before me on this ________ day of ____________________________________ , 20 _______ .

 

Personally known, or

Notary Public, State of Florida_________________________

Produced :_____________________________________

Document Attributes

Fact Name Description
Governing Law The Florida Proof of Loss form is governed by Section 817.234 of the Florida Statutes.
Intent to Deceive Filing a false Proof of Loss with intent to defraud can lead to serious legal consequences, including felony charges.
Claim Requirements The form requires detailed information about the insurance policy, including policy number and amount at the time of loss.
Date and Time of Loss It’s essential to provide both the date and time of the loss, as these details are critical for processing the claim.
Cause of Loss The form asks for a description of the cause and origin of the loss, which helps insurers understand the situation better.
Interest in Property Insured individuals must declare their interest in the property at the time of loss, which clarifies ownership and rights.
Mortgage and Lienholders Names of any mortgagees or lienholders must be included to ensure all parties with an interest in the property are acknowledged.
Other Insurance Policies The form requires disclosure of any other insurance policies that may cover the same loss, promoting transparency.
Sworn Statement By signing, the insured certifies that the information provided is accurate and truthful, reinforcing the importance of honesty in claims.

Florida Proof Loss: Usage Instruction

After gathering the necessary information, proceed to fill out the Florida Proof of Loss form accurately. This form is essential for documenting the details of a loss related to an insurance claim. Follow the steps outlined below to complete the form correctly.

  1. Enter the name of the insurance company in the designated space.
  2. Fill in the claim number assigned to your case.
  3. List the names of all insured individuals.
  4. Provide the date when the loss occurred.
  5. Indicate the time of loss, specifying whether it was a.m. or p.m.
  6. Describe the cause and origin of the loss in detail.
  7. State your interest in the property at the time of the loss.
  8. List the names of any mortgagees or lienholders associated with the property.
  9. Identify any other insurance policies that may cover the loss.
  10. Describe any changes in title or occupancy of the property during the policy term.
  11. Enter the total amount of insurance on the property at the time of loss.
  12. Provide the actual cash value of the property at the time of loss.
  13. Detail the loss and damage, including amounts for buildings, other structures, contents, and any additional living expenses (ALE).
  14. Calculate the total loss, subtract the deductible, and enter the whole amount claimed.
  15. Certify that the loss did not originate from any act or design on your part and that no property has been concealed.
  16. Sign the form as the insured, and print your name below your signature.
  17. Have the form notarized by a notary public in the state of Florida.

Frequently Asked Questions

  1. What is the Florida Proof of Loss form?

    The Florida Proof of Loss form is a document required by insurance companies when a policyholder files a claim for loss or damage. This form serves as a formal statement detailing the specifics of the loss, including the amount claimed and the circumstances surrounding the incident.

  2. Why is it important to complete this form accurately?

    Completing the form accurately is crucial because any false, incomplete, or misleading information can lead to serious consequences. Under Florida law, providing incorrect details with the intent to deceive can result in felony charges. Therefore, ensuring that all information is truthful and precise protects you legally and supports your claim effectively.

  3. What information do I need to provide on the form?

    The form requires several key pieces of information, including:

    • Name of the insurance company
    • Claim number
    • Names of the insured parties
    • Date and time of the loss
    • Cause of the loss
    • Details about any mortgages or lienholders
    • Other insurance policies that may cover the loss
    • Total insurance amount and actual cash value at the time of loss
    • Specifications of the damage
  4. How do I determine the Actual Cash Value of my property?

    The Actual Cash Value (ACV) is typically calculated by taking the replacement cost of the property and subtracting depreciation. Factors such as age, condition, and market value of the property at the time of the loss are considered. It may be beneficial to consult with an appraiser or your insurance agent for an accurate assessment.

  5. What happens if I forget to include certain information?

    If you forget to include important information, it could delay the processing of your claim or even result in a denial. It’s essential to review the form carefully before submission to ensure all necessary details are included. If you realize you've omitted something after submission, contact your insurance company immediately to provide the missing information.

  6. Is there a deadline for submitting the Proof of Loss form?

    Yes, there is typically a deadline for submitting the Proof of Loss form, which can vary by insurance company and policy. Generally, you should submit it as soon as possible after the loss occurs. Check your insurance policy for specific timelines, as failing to meet the deadline may jeopardize your claim.

  7. What if I have multiple insurance policies covering the same loss?

    If you have multiple insurance policies that may cover the loss, you must disclose this information on the Proof of Loss form. Each insurer will assess the claim based on their policy terms, and it’s important to be transparent to avoid complications or potential legal issues.

  8. Do I need a notary for the Proof of Loss form?

    Yes, the form must be sworn to and subscribed before a notary public. This step adds an extra layer of verification, ensuring that the information provided is accurate and that you have affirmed its truthfulness under oath.

Common mistakes

Filling out the Florida Proof of Loss form can be a daunting task. Many individuals make common mistakes that can lead to delays or even denials of their claims. Understanding these pitfalls can help ensure a smoother process.

One frequent mistake is failing to provide accurate dates. The date of loss is crucial for determining coverage and policy validity. If this date is incorrect, it may raise questions about the claim’s legitimacy. Similarly, not including the correct date of policy issuance or expiration can create complications.

Another error involves the description of the cause of loss. Insurers require a clear explanation of how the damage occurred. Vague or incomplete descriptions can lead to misunderstandings and potential denial of the claim. Providing detailed information helps clarify the situation for the insurer.

Many claimants overlook the importance of specifying their interest in the property. The form requires a clear statement about the claimant's stake in the property at the time of loss. Failing to articulate this can lead to confusion and may jeopardize the claim.

Additionally, individuals often neglect to list all mortgagees or lienholders. This section is vital for ensuring that all parties with a financial interest are acknowledged. Omitting this information can result in delays or complications in the claims process.

Another common mistake is not disclosing any other insurance policies that may cover the loss. Insurers need to know about additional coverage to assess liability accurately. Transparency in this area is essential to avoid issues later on.

Claimants sometimes fail to provide a complete account of damages. This includes not only the total loss amount but also a breakdown of damages to buildings, other structures, and contents. A thorough description with supporting documentation can strengthen the claim.

Moreover, many individuals do not clearly indicate the actual cash value of the property at the time of loss. This figure is critical for determining the amount of the claim. An inaccurate or missing valuation can lead to complications in processing the claim.

Another mistake involves the deductible. Claimants must specify the deductible amount and ensure it aligns with the policy. Misunderstanding or misrepresenting this figure can lead to discrepancies in the total amount claimed.

Finally, failing to sign the form correctly can invalidate the submission. The form requires signatures from all insured parties, and any missing or incorrect signatures can cause delays. Ensuring that all required signatures are present is crucial for a successful claim.

Documents used along the form

The Florida Proof of Loss form is a crucial document used in the insurance claims process. Alongside this form, several other documents often come into play to support a claim. Understanding these documents can help ensure that all necessary information is provided, making the claims process smoother and more efficient.

  • Claim Form: This is the initial form submitted to the insurance company to report a loss. It outlines the basic details of the incident and initiates the claims process.
  • Damage Assessment Report: This report details the extent of the damage to the property. It is typically prepared by a professional, such as a contractor or adjuster, and provides a thorough evaluation of the loss.
  • Policy Declarations Page: This document summarizes the insurance policy, including coverage limits, deductibles, and any endorsements. It serves as a reference for what is covered under the policy.
  • Photographs of Damage: Visual evidence can be very persuasive. Photographs showing the damage can help illustrate the extent of the loss and support the claim.
  • Repair Estimates: Detailed estimates from contractors or service providers for the cost of repairs are often required. These estimates help the insurance company assess the financial impact of the loss.
  • Proof of Ownership: Documents such as receipts, titles, or previous appraisals that establish ownership of the damaged property may be necessary to validate the claim.
  • Witness Statements: If there were any witnesses to the incident, their statements can provide additional context and support for the claim, helping to establish the circumstances surrounding the loss.

Each of these documents plays a vital role in the claims process. By gathering and submitting them alongside the Florida Proof of Loss form, claimants can enhance their chances of a successful outcome. Being organized and thorough can make a significant difference in how quickly and effectively a claim is resolved.

Similar forms

The Florida Proof of Loss form serves as a critical document in the insurance claims process. It is similar to several other documents used in various contexts, particularly in insurance and legal matters. Below are eight documents that share similarities with the Florida Proof of Loss form:

  • Sworn Statement of Claim: This document is used to affirm the accuracy of a claim made to an insurance company, similar to how the Florida Proof of Loss requires the insured to certify the truthfulness of the information provided.
  • Claim Adjustment Form: Like the Florida Proof of Loss, this form outlines the details of the loss and the amount being claimed. Both documents require specific information about the loss and the insured property.
  • Proof of Loss for Mortgage Insurance: This document is used when filing a claim related to mortgage insurance. It demands similar information regarding the loss and the insured property, paralleling the requirements of the Florida form.
  • Insurance Claim Form: This is a general form used to initiate an insurance claim. It collects information about the incident and the insured, much like the Florida Proof of Loss form does.
  • Loss Notice: A loss notice is submitted to inform the insurance company about a loss event. It shares similarities with the Florida Proof of Loss form in that both documents require timely notification of a loss.
  • Affidavit of Loss: This legal document is used to declare the loss of property. It requires the signer to affirm the truth of the information provided, akin to the sworn statements in the Florida Proof of Loss form.
  • Property Damage Report: This report details the extent of damage to property, similar to the loss and damage specifications outlined in the Florida Proof of Loss form.
  • Subrogation Agreement: In cases where an insurer seeks to recover costs from a third party, this agreement outlines the details of the claim. It often requires similar information about the loss and the parties involved, mirroring the requirements of the Florida Proof of Loss.

Dos and Don'ts

When filling out the Florida Proof of Loss form, it is important to follow certain guidelines to ensure accuracy and compliance. Here are six things you should and shouldn't do:

  • Do provide complete and accurate information. Ensure that all fields are filled out truthfully.
  • Do double-check your entries for any errors or omissions before submission.
  • Do keep copies of the completed form and any supporting documents for your records.
  • Do sign and date the form where required to validate your claim.
  • Don't include any false or misleading information. This can lead to serious legal consequences.
  • Don't forget to mention any other insurance policies that may cover the loss. Transparency is key.

By adhering to these guidelines, you can help ensure that your claim is processed smoothly and efficiently. Take your time to review the form thoroughly before submitting it.

Misconceptions

Understanding the Florida Proof of Loss form is crucial for anyone filing an insurance claim. However, several misconceptions can lead to confusion. Here are seven common myths:

  • It's just a formality. Many believe that submitting this form is a mere formality. In reality, it is a critical document that can impact the outcome of your claim.
  • All claims are automatically approved. Some think that once they submit this form, their claim will be approved without question. Each claim is evaluated on its own merits, and this form plays a significant role in that evaluation.
  • Only the insured needs to sign it. There’s a misconception that only the insured’s signature is required. If there are multiple insured parties or lienholders, their signatures may also be necessary.
  • Filling it out is simple. While the form may seem straightforward, providing accurate and complete information is essential. Incomplete or misleading details can lead to serious consequences.
  • It can be submitted at any time. Some believe they can submit the form whenever they want. There are often strict deadlines for submission, and missing them can jeopardize your claim.
  • It's the same as a claim form. Many confuse the Proof of Loss form with the initial claim form. They serve different purposes and should be filled out accordingly.
  • Notarization is optional. Some think that notarizing the document is optional. However, it is often a requirement to validate the information provided.

Addressing these misconceptions can help ensure a smoother claims process. Always review the form carefully and consider seeking assistance if needed.

Key takeaways

Filling out the Florida Proof of Loss form is an important step in filing an insurance claim. Here are some key takeaways to keep in mind:

  • Accuracy is Crucial: Ensure all information provided is truthful and complete. Any false or misleading details can lead to serious legal consequences.
  • Required Information: Fill in essential details such as the policy number, date of loss, and cause of loss. This information is necessary for processing your claim.
  • Document Everything: Attach any relevant documentation, including receipts for repairs or adjustments. This supports your claim and provides evidence of your loss.
  • Sign and Notarize: The form must be signed by all insured parties. Additionally, a notary public needs to witness the signing to validate the document.
  • Know Your Policy Limits: Be aware of the total insurance amount on your property and the actual cash value at the time of loss. This helps in accurately claiming the amount owed.
  • Consult Your Agent: If you have questions while filling out the form, reach out to your insurance agent. They can provide guidance and clarify any uncertainties.

By following these takeaways, you can navigate the process more effectively and ensure your claim is handled smoothly.